Top 4: Erstbezug mit großer Terrasse – modernes Wohnen in ruhiger, zentraler Lage von Innsbruck

Tirol , Innsbruck - Stadt , Innsbruck , Sillhöfe
← Zur Ergebnisliste
images icon

3

Zimmer

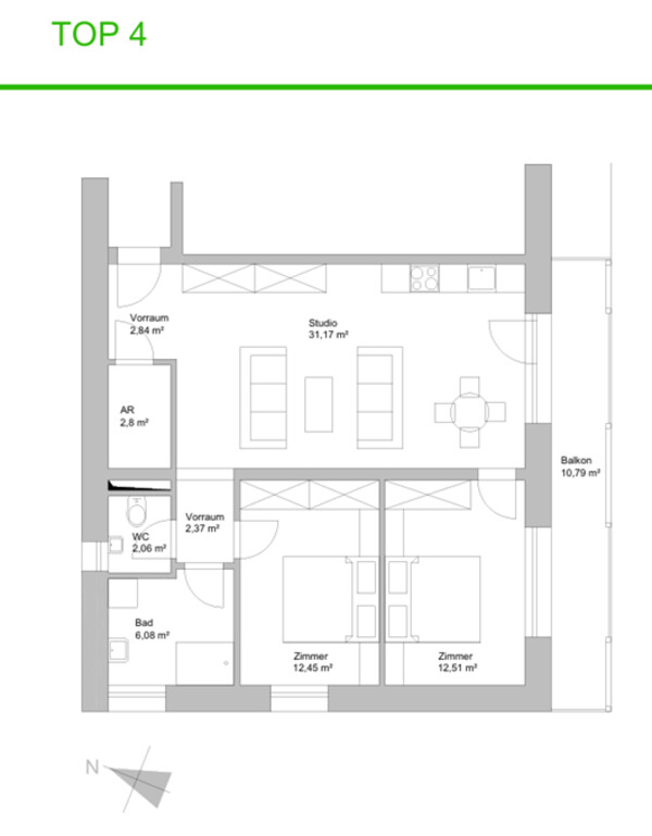
73 m²

Wohnfläche

Gesamtmiete

€ 2.101,78
inkl. Carport, Abstellraum, Keller sowie BK, HK und USt
Miete pro m2 € 20
Netto-Kaltmiete € 1.454,8
Nebenkosten € 200,04
Einmalkosten € 360
Mietvertragserrichtungskosten lt. Hausverwaltung
Preis Stellplatz € 180
ist im Gesamtmietzins bereits inbegriffen!
USt € 212,39
Heizkosten (exkl. MwSt.) € 54,56
Kaution € 6.305,35
Stockwerk Erdgeschoss
Badezimmer 1
Nebenräume 1
Balkon 10,72 m²
Keller 4,39 m²
Abstellraum 3,51 m²
Fahrradraum Ja
Carport 12,5
HWB (kwh/m²a) 38
HWB-Klasse B
FGEE 0,71
FGEE-Klasse A
Baujahr 1989
Bautyp
  • Neubau/Erstbezug
Bauweise
  • Holz
  • Massiv
Verfügbar ab sofort
Befristung 5 Jahre
Anzeigen ID 361755
Aktualisiert am 25.02.2026
AUSTRIA IMMO NOBILIS e.U.
Name:
Dr. Bond
Adresse:
6020 Innsbruck
Telefon:

Diese hochwertige Mietwohnung im Erstbezug vereint modernes Wohngefühl mit naturnaher Ruhe – und das in zentraler Lage. Ideal für alle, die urbanes Leben und Erholung im Grünen perfekt kombinieren möchten.


Lage

Die Wohnung befindet sich in einer ruhigen, dennoch sehr zentralen Wohnlage.

Die Buslinie K ist nur ca. 100 m entfernt und bringt Sie direkt und schnell in die Innsbrucker Innenstadt.

Ein Naherholungsgebiet liegt in unmittelbarer Umgebung und lädt zu Spaziergängen, Sport und Entspannung ein.


Ausstattung & Highlights

  1. Erstbezug
  2. Große Terrasse mit viel Platz zum Entspannen
  3. Hochwertiger Naturholzboden
  4. 3-fach verglaste Internorm-Fenster für optimale Wärme- und Schalldämmung
  5. Elektrische Außenjalousien in allen Räumen
  6. Neue, moderne Küche inkl. Geschirrspüler
  7. Neues Badezimmer mit zeitgemäßer Ausstattung
  8. Kellerabteil mit Stromanschluss
  9. dzt. in Sanierung befindlicher Carport inkl. Abstellraum und Vorinstallation für E-Auto-Lademöglichkeit
  10. Fahrrad- und Kinderwagenabstellraum
  11. 2 Gästeparkplätze
  12. Kinderspielplatz in der Anlage


Energie & Nachhaltigkeit

Die Beheizung erfolgt über eine moderne Wärmepumpe, die für hohe Energieeffizienz und niedrige Betriebskosten sorgt; Fußbodenheizung.


Fazit:

iese Wohnung bietet höchsten Wohnkomfort, moderne Ausstattung und eine ausgezeichnete Lage – perfekt für Paare, Studenten-WG, Familien oder anspruchsvolle Singles.


Zögern Sie nicht und kontaktieren Sie uns für weitere Informationen und eine Besichtigung; wir freuen uns auf Sie!

Weitere Merkmale
  • Einbauküche
  • Bad mit Dusche, Fenster
  • Boden: Parkett
  • Heizung: Wärmepumpe, Fußbodenheizung
  • WG-geeignet
  • Rollladen
  • Ausrichtung Balkon/Terrasse: Süden
Kontaktinformationen
AUSTRIA IMMO NOBILIS e.U.
Name:
Dr. Bond
Adresse:
6020 Innsbruck
Telefon:

Dieses Objekt finanzieren