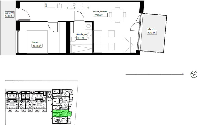
Elegante 2-Zimmer-Wohnung mit Balkon

Tirol , Innsbruck - Stadt , Innsbruck , Pontlatzer Straße 63
← Zur Ergebnisliste
images icon

2

Zimmer

43 m²

Wohnfläche

Preis

€ 382.000
Preis Stellplatz € 35.000
Tiefgaragenplatz
Stockwerk 2. OG
Badezimmer 1
Balkon 6,43 m²
Keller 4,00 m²
Fahrradraum 20,00 m²
(Tief-)Garage 1
HWB (kwh/m²a) 35
HWB-Klasse B
FGEE 0,65
FGEE-Klasse A+
Baujahr 2026
Bautyp
  • Neubau/Erstbezug
Bauweise
  • Massiv
Verfügbar ab 2. Quartal 2026
Anzeigen ID 359119
Aktualisiert am 18.12.2025
Externe ID Top 3.04
Hofmeister Finanz & Immobilien GmbH
Name:
KommR Mag. Cornelia Hofmeister
Adresse:
Maria-Theresien-Straße 7 / 3. Stock
6020 Innsbruck
Internet:
Telefon:

In der Pontlatzer Straße 63 entsteht ein energieeffizientes Neubau-Wohnprojekt mit 4 Etagen und Tiefgarage. Es werden insgesamt 69 Wohnungen errichtet, 42 Wohnungen befinden sich im südlichen Gebäudeteil, und werden von der Fa. HOFMEISTER Finanz & Immobilien GmbH zum Verkauf angeboten. Im Untergeschoß befinden sich 65 Tiefgaragenplätze, Abstellplätze für einspurige Fahrzeuge, ein Müllraum, Technikräume, ein großer Fahrradabstellplatz und sämtliche Kellerabteile. Jede Wohnung ist entweder mit Terrasse und Gartenanteil im Erdgeschoß bzw. Balkonen in den oberen Stockwerken ausgestattet. Der Großteil der Wohnungen sind 2-Zimmerwohnungen mit einer Größe von 45-50 m², die Gartenanteile inklusive Terrasse sind ca. 20 m², die Balkone bei 5-6 m².

Lage

Die Pontlatzer Straße 63 vereint urbanes Wohnen mit bester Infrastruktur, sehr guter Lage und hohem Freizeitwert – ein idealer Standort für alle, die citynah und dennoch gut angebunden leben möchten.

In wenigen Gehminuten befinden sich Bus- und Straßenbahnhaltestellen mit direkter Anbindung an die Innsbrucker Innenstadt, den Hauptbahnhof, die Universität sowie an umliegende Stadtteile. Der Anschluss an die A12 Inntalautobahn und die B174 liegt ebenfalls in unmittelbarer Nähe – ideal für Pendler und Berufstätige mit erhöhtem Mobilitätsbedarf.

Das Umfeld ist geprägt von einer guten Mischung aus Wohn- und Geschäftsbereichen. Nahversorger, Supermärkte, Apotheken, Bäckereien, Banken und Drogeriemärkte befinden sich in direkter Umgebung.

Ausstattung

Heizung/Warmwasser:

Zentralheizung über Fernwärme (erneuerbare Energie), Fußbodenheizung, zusätzlich Photovoltaikanlage am Dach (33,1 kWp Leistung), zentrale Warmwasserversorgung.

Fenster/Türen:

Elegante Innentüren mit Stahlzargen, Sicherheitseingangstüre mit darüberliegendem Glaselement, Kunststofffenster mit 3-Fachverglasung, Elektroverkabelung für Sonnenschutz/Raffrollos

Böden:

Hochwertiger Eichenparkett in den Wohnräumen, Fliesenböden in den Nassräumen

Bäder/WC:

Bodenfliesen, Wandfliesen im Nassbereich bis zur Decke, hochwertige Armaturen und Sanitärausstattung, Entlüftung mittels mit Licht geschalteten Einzelraumlüfter über das Dach.

Sonstiges:

Personenlift von der Tiefgarage in jede Wohnetage, zusätzlich Stiegenaufgang über offenes Treppenhaus. Tiefgaragenplätze und Kellerabteile befinden sich im Untergeschoß.

Zahlungsmodalitäten

Bekanntgabe Ihrer Kaufentscheidung durch Unterfertigung eines Kaufanbots, Zahlung eines Angeldes in Höhe von € 150,-- pro Quadratmeter Wohnnutzfläche, welches in der Folge in voller Höhe auf den Kaufpreis angerechnet wird. Die Bezahlung des restlichen Kaufpreises inkl. der Kosten für den Autoabstellplatz erfolgt nach Baufertigstellung vor Übernahme der Wohnung.

Gesetzestext Angeld:

„Das Angeld (§ 908 ABGB) wird bei Abschluss eines Vertrages zum Nachweis und zur Sicherung der Vertragserfüllung erlegt. Tritt der Angeld-Geber aus seinem Verschulden vom Vertrag zurück, so ist das Angeld zugunsten der anderen Vertragspartei verfallen; dies gilt auch, wenn der Kaufinteressent nach erfolgtem Vertragsabschluss bei Fälligkeit des Restkaufpreises unbegründet die Zahlung verweigert, mit der Zahlung grundlos mehr als 4 Wochen nach Aufforderung durch den Treuhänder in Verzug ist oder aber unbegründet die Annahme des Kaufobjektes verweigert. Tritt der Angeld-Empfänger aus seinem Verschulden zurück, so hat er der anderen Vertragspartei das doppelte Angeld zu bezahlen. In beiden Fällen ist es nicht beachtlich, ob durch den Rücktritt ein Schaden entstanden ist. Bei Erfüllung des Vertrages ist das Angeld auf die Leistung (Kaufpreis) anzurechnen.“

Die Kaufvertragserrichtung und Vertragsabwicklung erfolgten durch Herrn Rechtsanwalt Dr. Karl Ulrich Janovsky in Innsbruck.

Pläne und Kaufpreise vorbehaltlich Änderungen. Das in der Visualisierung gezeigte Objekt kann in der Außenansicht noch kleinere Anpassungen erfahren.

Wir weisen ausdrücklich auf ein wirtschaftliches Naheverhältnis zwischen Makler und Bauträger hin. Die im Exposé angeführten Inhalte beruhen teilweise auf Angaben Dritter und sind deshalb ohne Gewähr. Die beigefügten Pläne sind aus dem Bauakt entnommen und können in Natur unterschiedlich sein.

Weitere Merkmale
  • Bad mit Dusche
  • Boden: Fliesen, Parkett
  • Heizung: Fernwärme, Zentralheizung, Fußbodenheizung, Photovoltaik
  • Kabel/Satelliten-TV
  • Lift
  • Seniorengerecht
  • Ausrichtung Balkon/Terrasse: Südosten
Kontaktinformationen
Hofmeister Finanz & Immobilien GmbH
Name:
KommR Mag. Cornelia Hofmeister
Adresse:
Maria-Theresien-Straße 7 / 3. Stock
6020 Innsbruck
Internet:
Telefon:

Dieses Objekt finanzieren