1
Zimmer
21 m²
Wohnfläche
Preis
€ 320.000
Einmalkosten
3 % zzgl. USt.
Badezimmer
1
Terrasse
Ja
Baujahr
2012
Verfügbar ab
sofort
Anzeigen ID
354580
Aktualisiert am
23.12.2025
Externe ID
351239_CRT-58
Name:
Raphael Gstadtner
Adresse:
Fürstenweg 8
6020 Innsbruck
6020 Innsbruck
Internet:
Telefon:
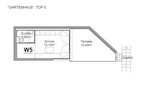
Nageletal 6 - Tiny House
Eigenständig und privat – zwei Eigenschaften die das kleine Häuschen definitiv erfüllt.
Zugang? Privat über eine Steintreppe gelangt man auf die große Süd-West Terrasse.
Wohnen? Klein aber fein. Wohnbereich – Küche – Schlafen – Bad
Auf engem Raum ist alles erfüllt, kuschelig, heimelig, zum Wohlfühlen. Die Kunst? Die Verbindung von Funktion, Gestaltung, Blickachsen und noch viel mehr zu kleinen Raum-Refugien.
Parken: 5 Freiparkplätze stehen zur Verfügung. Zwei davon teils unterdacht.
Fahrräder werden im Haupthaus im Fahrradbereich abgestellt. Kellerabteile sind im Haupthaus verfügbar.
An der Fassade des Haupthauses rankt sich ein Blauregen empor – der verleiht dem Haus einen ganz besonderen, verwunschen märchenhaften Charakters.
Nageletal 6
Im Jahr 2012 wurde das Haus Nageletal 6 von Dr Martin Baldauf und Armin Ennemoser als privates Investitionsprojekt errichtet und der Bau persönlich be- und ge-leitet.
Und der war spannend: Die steile Hanglage war eine Herausforderung, die aber alle beteiligten Firmen mit Bravour gemeistert haben.
Weil das Projekt als Privatobjekt konzipiert ist, sind viele kleine Extras eingeflossen, die man manchmal bewusster, manchmal eher unbewusst, sehr deutlich spürt.
Die Architektur stammt vom Team Arch. Di Sabine Penz & Arch. Di Bernd Ludin, beide keine Unbekannten in Tirol und Innsbruck.
Das Konzept ist klar :
Möglichst privates Wohnen, jeweils auf einer eigenen Etage, mit freiem, unverbautem und unverbaubarem Blick auf die schönsten Stadteile der Landeshauptstadt und die südlich vorgelagerte Bergwelt.
Ruhe , Sonne, Ausblick, sollte jeder Wohnraum garantieren.
Und dabei über Riedgasse und Bäckerbühelgasse in wenigen Minuten nach St Nikolaus und ins Zentrum.
Wer ein E-Bike hat, ist klar im Vorteil.
Wohnen im Grünen, absolut ruhig und zentrumsnah.
Alles Grün ! , war das Motto. Grüner, frei wuchernder Garten, grüne, wild rankende Wisteria an der Fassade.
Ein wenig Technik :
Das Hauptgebäude ist, soweit es im Hang verbaut ist, in WU-Beton errichtet, die oberirdischen Teile in rotem Hochlochziegel mit entsprechender Wärmedämmung und stehender Lärchenholzschalung.
Die Fenster sind ebenfalls in Lärche gefertigt, geölt und mit entsprechendem Isolierglas verglast.
Große Fixverglasungselemente und raumhohe Tür-Fensterelemente geben dem Bauwerk den gewollt offenen, modernen Charakter.
Auch die Innentüren sind als flächenbündige, raumhohe Tischlerelemente eingesetzt.
Die Innenböden sind in Massivparkett Eiche verlegt.
Die Wärmebereitstellung für Warmwasser und Heizung erfolgt zum großen Teil über die hauseigene Solaranalage, die über die freie Südlage ausgesprochen begünstigt ist, zum Teil über eine Gasfeuerungsanlage.
Eigenständig und privat – zwei Eigenschaften die das kleine Häuschen definitiv erfüllt.
Zugang? Privat über eine Steintreppe gelangt man auf die große Süd-West Terrasse.
Wohnen? Klein aber fein. Wohnbereich – Küche – Schlafen – Bad
Auf engem Raum ist alles erfüllt, kuschelig, heimelig, zum Wohlfühlen. Die Kunst? Die Verbindung von Funktion, Gestaltung, Blickachsen und noch viel mehr zu kleinen Raum-Refugien.
Parken: 5 Freiparkplätze stehen zur Verfügung. Zwei davon teils unterdacht.
Fahrräder werden im Haupthaus im Fahrradbereich abgestellt. Kellerabteile sind im Haupthaus verfügbar.
An der Fassade des Haupthauses rankt sich ein Blauregen empor – der verleiht dem Haus einen ganz besonderen, verwunschen märchenhaften Charakters.
Nageletal 6
Im Jahr 2012 wurde das Haus Nageletal 6 von Dr Martin Baldauf und Armin Ennemoser als privates Investitionsprojekt errichtet und der Bau persönlich be- und ge-leitet.
Und der war spannend: Die steile Hanglage war eine Herausforderung, die aber alle beteiligten Firmen mit Bravour gemeistert haben.
Weil das Projekt als Privatobjekt konzipiert ist, sind viele kleine Extras eingeflossen, die man manchmal bewusster, manchmal eher unbewusst, sehr deutlich spürt.
Die Architektur stammt vom Team Arch. Di Sabine Penz & Arch. Di Bernd Ludin, beide keine Unbekannten in Tirol und Innsbruck.
Das Konzept ist klar :
Möglichst privates Wohnen, jeweils auf einer eigenen Etage, mit freiem, unverbautem und unverbaubarem Blick auf die schönsten Stadteile der Landeshauptstadt und die südlich vorgelagerte Bergwelt.
Ruhe , Sonne, Ausblick, sollte jeder Wohnraum garantieren.
Und dabei über Riedgasse und Bäckerbühelgasse in wenigen Minuten nach St Nikolaus und ins Zentrum.
Wer ein E-Bike hat, ist klar im Vorteil.
Wohnen im Grünen, absolut ruhig und zentrumsnah.
Alles Grün ! , war das Motto. Grüner, frei wuchernder Garten, grüne, wild rankende Wisteria an der Fassade.
Ein wenig Technik :
Das Hauptgebäude ist, soweit es im Hang verbaut ist, in WU-Beton errichtet, die oberirdischen Teile in rotem Hochlochziegel mit entsprechender Wärmedämmung und stehender Lärchenholzschalung.
Die Fenster sind ebenfalls in Lärche gefertigt, geölt und mit entsprechendem Isolierglas verglast.
Große Fixverglasungselemente und raumhohe Tür-Fensterelemente geben dem Bauwerk den gewollt offenen, modernen Charakter.
Auch die Innentüren sind als flächenbündige, raumhohe Tischlerelemente eingesetzt.
Die Innenböden sind in Massivparkett Eiche verlegt.
Die Wärmebereitstellung für Warmwasser und Heizung erfolgt zum großen Teil über die hauseigene Solaranalage, die über die freie Südlage ausgesprochen begünstigt ist, zum Teil über eine Gasfeuerungsanlage.
Weitere Merkmale
- Einbauküche
- Bad mit Dusche, Fenster
- Boden: Parkett
- Heizung: Gas, Fußbodenheizung
Kontaktinformationen
Name:
Raphael Gstadtner
Adresse:
Fürstenweg 8
6020 Innsbruck
6020 Innsbruck
Internet:
Telefon:
Dieses Objekt finanzieren