1
Zimmer
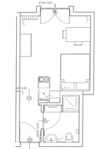
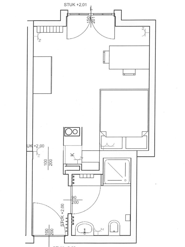
23 m²
Wohnfläche
Preis
€ 182.000
Einmalkosten
3,6%
Stockwerk
2
Badezimmer
1
HWB (kwh/m²a)
89,10
HWB-Klasse
C
FGEE
1,58
FGEE-Klasse
C
Baujahr
1952
Bautyp
- Saniert/Renoviert
Anzeigen ID
344022
Aktualisiert am
04.03.2026
Externe ID
ERA_12345_5670
Name:
Matthias Weger
Adresse:
Amraser Strasse 23
6020 Innsbruck
6020 Innsbruck
Internet:
Telefon:
Beschreibung:
Die Wohnung befindet sich im 2. Stock eines markanten Gebäudes direkt im Zentrum, Südtiroler Platz 1, und ist zum ruhigen Innenhof ausgerichtet. Dadurch entfliehen Sie dem Trubel der Innenstadt. Ein kleines Detail gibt´s auch noch dazu: Das Stadtappartement verfügt über einen kleinen Balkon mit fantastischer Aussicht auf die Nordkette. Ein Personenaufzug steht selbstverständlich zur Verfügung, um einen bequemen Zugang zu gewährleisten.
Die Wohnung ist aktuell für die nächsten 3 Jahre vermietet mit einer Netto-Miete idHv. € 643,39,- zzgl. BK idHv. € 197,40,-.
Highlights:
Hervorragende Lage im Zentrum von Innsbruck
Direkte Anbindung an den Hauptbahnhof und öffentlichen Nahverkehr
Innenhofausrichtung für maximale Ruhe
kleiner französischer Balkon
Personenaufzug für bequemen Zugang
Vielfältige Einkaufs- und Freizeitmöglichkeiten in unmittelbarer Umgebung
Fazit:
Diese Wohnung bietet eine einzigartige Gelegenheit, im Herzen von Innsbruck zu leben und das pulsierende Stadtleben in vollen Zügen zu genießen. Mit ihrer erstklassigen Lage stellt sie eine attraktive Wohn- und Anlagemöglichkeit dar.
Wir freuen uns darauf Ihnen diese Wohnung persönlich vorstellen zu dürfen.
Die angebotene Wohnung befindet sich im begehrten Zentrum von Innsbruck, in unmittelbarer Nähe zum Hauptbahnhof. Diese erstklassige Lage bietet nicht nur eine ausgezeichnete Anbindung an den öffentlichen Nahverkehr, sondern auch die Vorzüge eines urbanen Lebensstils mit zahlreichen Einkaufsmöglichkeiten, Restaurants und kulturellen Einrichtungen der Stadt.
Heizungsart: Fernwärme
Baujahr: 1952
Befeuerung/Energieträger: Fernwärme Dampf
Für weitere Detailauskünfte und für Besichtigungen stehe ich gerne jederzeit zur Verfügung - Matthias Weger:
Es wird ausdrücklich darauf hingewiesen, dass die angeführten Texte, Bilder schreibgeschützt sind. Eine Weiterverwendung wird untersagt. Die angeführten Angaben und Informationen dienen lediglich als unverbindliche Vorinformation und bleiben somit ohne jede Gewähr. Zwischenverkauf, Irrtümer vorbehalten. Die Angaben/Unterlagen sind Immobilidea GmbH, von Dritten zur Verfügung gestellt worden. Hierfür wird keine Haftung übernommen.
Die Wohnung befindet sich im 2. Stock eines markanten Gebäudes direkt im Zentrum, Südtiroler Platz 1, und ist zum ruhigen Innenhof ausgerichtet. Dadurch entfliehen Sie dem Trubel der Innenstadt. Ein kleines Detail gibt´s auch noch dazu: Das Stadtappartement verfügt über einen kleinen Balkon mit fantastischer Aussicht auf die Nordkette. Ein Personenaufzug steht selbstverständlich zur Verfügung, um einen bequemen Zugang zu gewährleisten.
Die Wohnung ist aktuell für die nächsten 3 Jahre vermietet mit einer Netto-Miete idHv. € 643,39,- zzgl. BK idHv. € 197,40,-.
Highlights:
Hervorragende Lage im Zentrum von Innsbruck
Direkte Anbindung an den Hauptbahnhof und öffentlichen Nahverkehr
Innenhofausrichtung für maximale Ruhe
kleiner französischer Balkon
Personenaufzug für bequemen Zugang
Vielfältige Einkaufs- und Freizeitmöglichkeiten in unmittelbarer Umgebung
Fazit:
Diese Wohnung bietet eine einzigartige Gelegenheit, im Herzen von Innsbruck zu leben und das pulsierende Stadtleben in vollen Zügen zu genießen. Mit ihrer erstklassigen Lage stellt sie eine attraktive Wohn- und Anlagemöglichkeit dar.
Wir freuen uns darauf Ihnen diese Wohnung persönlich vorstellen zu dürfen.
Die angebotene Wohnung befindet sich im begehrten Zentrum von Innsbruck, in unmittelbarer Nähe zum Hauptbahnhof. Diese erstklassige Lage bietet nicht nur eine ausgezeichnete Anbindung an den öffentlichen Nahverkehr, sondern auch die Vorzüge eines urbanen Lebensstils mit zahlreichen Einkaufsmöglichkeiten, Restaurants und kulturellen Einrichtungen der Stadt.
Heizungsart: Fernwärme
Baujahr: 1952
Befeuerung/Energieträger: Fernwärme Dampf
Für weitere Detailauskünfte und für Besichtigungen stehe ich gerne jederzeit zur Verfügung - Matthias Weger:
Es wird ausdrücklich darauf hingewiesen, dass die angeführten Texte, Bilder schreibgeschützt sind. Eine Weiterverwendung wird untersagt. Die angeführten Angaben und Informationen dienen lediglich als unverbindliche Vorinformation und bleiben somit ohne jede Gewähr. Zwischenverkauf, Irrtümer vorbehalten. Die Angaben/Unterlagen sind Immobilidea GmbH, von Dritten zur Verfügung gestellt worden. Hierfür wird keine Haftung übernommen.
Weitere Merkmale
- Lift
- Rollstuhlgerecht
Kontaktinformationen
Name:
Matthias Weger
Adresse:
Amraser Strasse 23
6020 Innsbruck
6020 Innsbruck
Internet:
Telefon:
Dieses Objekt finanzieren