Premium Living mit großem Garten am Fuße des Karwendels

Tirol , Innsbruck - Land , Absam
← Zur Ergebnisliste
images icon

3

Zimmer

121 m²

Wohnfläche

Preis

€ 990.000
Einmalkosten
3,00 % des Kaufpreises zzgl. 20 % USt.
Badezimmer 1
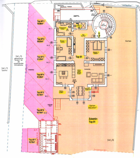
Garten 302,91 m²
Keller 31,64 m²
Gesamtanzahl Stellplätze 2
Freiplatz Ja
HWB (kwh/m²a) 97.8
HWB-Klasse C
FGEE 1.19
FGEE-Klasse C
Baujahr 2024
Bautyp
  • Neubau/Erstbezug
Bauweise
  • Massiv
Verfügbar ab sofort
Anzeigen ID 357064
Aktualisiert am 07.01.2026
Externe ID infina_370709_42449
INFINA Credit Broker GmbH
Name:
Nina Prock
Adresse:
Brixner Straße 2/3
6020 Innsbruck
Internet:
Telefon:

Premium Living mit großem Garten am Fuße des Karwendels

Hier einige kurze Informationen zur Immobilie:

  • Nutzfläche ca. 120,82 m² über das gesamte Erdgeschoß.
  • Südausrichtung mit ca. 302,91 m² großem Garten.
  • Offenes Wohnkonzept mit Design-Küche, Essbereich und Wohnzimmer mit herrlichem Ausblick auf die umliegende Bergwelt
  • Moderne Einbauküche mit hochwertigen Geräten für gehobene Ansprüche.
  • Kachelofen für ein gemütliches Wohnerlebnis.
  • Hochwertige Ausstattung durch Holz- und Fliesenböden.
  • Optimal genutztes Badezimmer mit Fenster, Badewanne, stilvoller Ausstattung, WC
  • Drei Kellerräume, welche sogar vom eigenen Garten begehbar sind (insgesamt ca. 31,64 m²) – vielfältig nutzbar, z. B. als Lager, Atelier oder Hobbyraum
  • 2 KFZ-Abstellplätze im Freien vorhanden
  • Lehmputz im Keller sorgt für ein gutes Raumklima und natürliche Luftfeuchtigkeit
  • Fernwärmeheizung – zentral, effizient und zukunftssicher
  • Wohnungseigentum - nur 3 Einheiten im Objekt
  • Haus in Eigenverwaltung – schlanke Struktur, volle Kontrolle, niedrige Betriebskosten
  • Betriebskosten: ca. € 265,00/Monat je nach Verbrauch
  • Die Wohnung ist ab sofort beziehbar

Infina, Österreichs beliebtester Wohnbau-Finanz-Experte, begleitet Sie ganzheitlich rund um Ihr Immobilienvorhaben.

Unser Team von Immobilienexperten unterstützt Sie beim geplanten Kauf als auch bei einem möglichen Verkauf Ihrer bestehenden Immobilie. Zudem bieten unsere Finanzierungsexperten auf Wunsch maßgeschneiderte Finanzierungslösungen durch den Vergleich der besten Kredite von über 120 Banken in Österreich und Deutschland.

Wir möchten Sie unabhängig, transparent und flexibel als starker Partner in allen Immobilienangelegenheiten unterstützen.

Kontaktieren Sie uns für einen persönlichen Besichtigungstermin oder eine unverbindliche und kostenfreie Finanzierungsberatung.

Kaufpreis EUR 990.000,00
(Sämtliche o.a. m²-Angaben laut Nutzwertgutachten gem. Kauf & Wohnungseigentumsvertrag bzw. Einreichplanung)

Für weitere Informationen fordern Sie bitte unser ausführliches Exposé an.

Nina Prock, MA

Was kann Infina noch für Sie tun?

Wenn Sie eine Finanzierung für Ihre Traumimmobilie wünschen, begleiten wir Sie gerne von der strategischen Planung bis zur Realisierung und darüber hinaus. Wir sind Österreichs beliebtester Wohnbau-Finanz-Experte und unsere Mission lautet: Jeder Kunde hat das Recht auf den besten Kredit.

  • Infina kooperiert mit über 120 Banken in Österreich und Deutschland
  • Über 600 Kreditprodukte im Vergleich
  • Über 100-mal vor Ort in ganz Österreich

Ebenso unterstützen wir unsere Kunden beim Verkauf und der Vermietung Ihrer Immobilien sowie bei der Immobiliensuche durch unsere Immobilienexperten.

Kauferwerbsnebenkosten:
Lt. Nebenkostenübersicht
3,5 % Grunderwerbssteuer
1,1 % Grundbuchseintragungsgebühr
3,00 % des Kaufpreises zzgl. 20 % USt.
Kosten für die Errichtung des Kaufvertrages und Treuhandschaft lt. Anwaltstarif zzgl. Barauslagen


Wir weisen Sie darauf hin, dass die gemachten Angaben und Informationen lediglich unverbindliche Vorabinformationen sind und daher ohne Gewähr erfolgen. Der Vermittler ist als Doppelmakler tätig.

Die Schillerstraße befindet sich in ruhiger, sonniger Lage von Absam, einer der begehrtesten Wohngegenden im Raum Hall in Tirol. Umgeben von gepflegten Häusern und charmantem Dorfflair, bietet die Lage Privatsphäre und Ruhe bei gleichzeitig exzellenter Infrastruktur.
Nahversorger, Apotheke, Schulen, Kindergarten, Öffis und viele Freizeitangebote sind fußläufig erreichbar. Die Stadt Hall ist in wenigen Minuten erreichbar, Innsbruck liegt nur ca. 15 Fahrminuten entfernt.
Ob Wandern im Halltal, Skitouren im Winter oder ein entspannter Spaziergang im Naherholungsgebiet: Diese Wohnlage steht für aktive Entspannung, Naturgenuss und hohe Lebensqualität. Die Aussicht auf die Tiroler Alpenkulisse ist allgegenwärtig und beeindruckt täglich aufs Neue.
Weitere Merkmale
  • Einbauküche
  • Bad mit Dusche, Fenster
  • Boden: Fliesen, Kunststoffboden
  • Heizung: Fernwärme
  • Lift
Kontaktinformationen
INFINA Credit Broker GmbH
Name:
Nina Prock
Adresse:
Brixner Straße 2/3
6020 Innsbruck
Internet:
Telefon:

Dieses Objekt finanzieren