3-Zimmer-Wohnung im 1.OG, Baumkirchen

Tirol , Innsbruck - Land , Baumkirchen , Bahnhofstraße
← Zur Ergebnisliste
images icon

3

Zimmer

74 m²

Wohnfläche

Preis

€ 513.800
Badezimmer 1
Balkon 13,61 m²
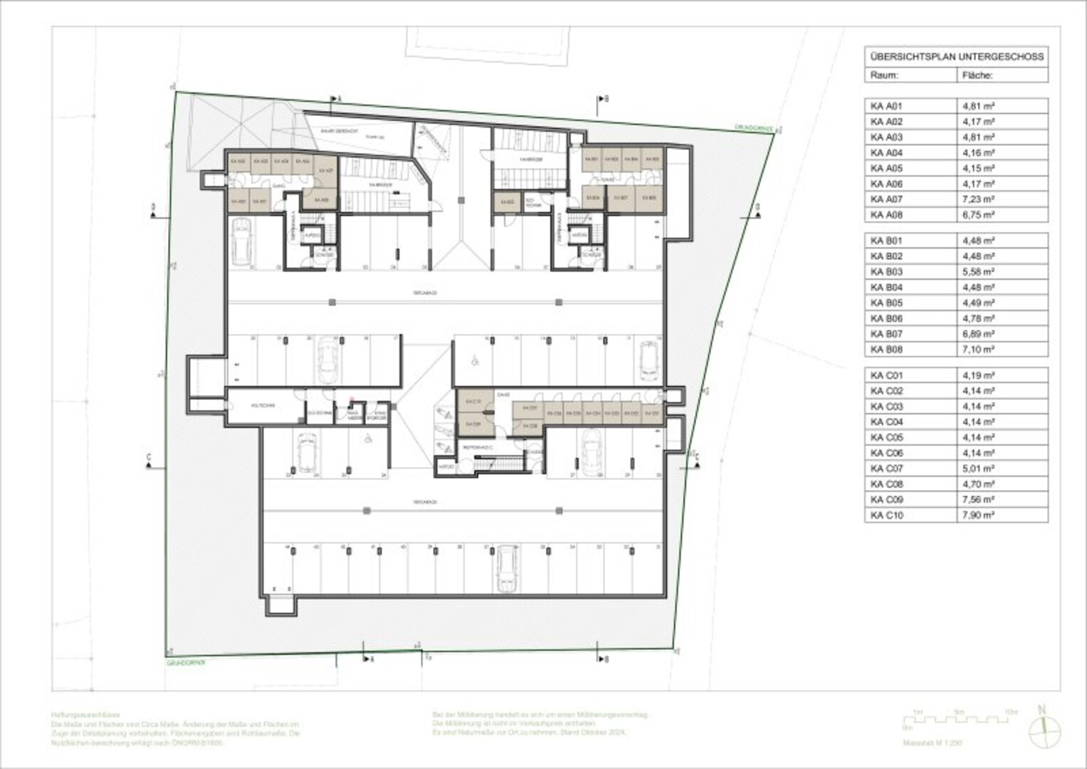
Keller 4,70 m²
Abstellraum Ja
Fahrradraum Ja
(Tief-)Garage Ja
HWB (kwh/m²a) 37
FGEE 0.54
Baujahr 2025
Bautyp
  • Neubau/Erstbezug
Bauweise
  • Massiv
Verfügbar ab Sommer 2026
Anzeigen ID 331552
Aktualisiert am 21.01.2026
Externe ID justimmo_343495_336
Realbau GmbH
Name:
Eva Maria Kremsmair
Adresse:
Brockenweg 2
6060 Hall in Tirol
Internet:
Telefon:

3-Zimmer-Wohnung im 1.OG, Baumkirchen

IN BAU

DREIKLANG steht für durchdachtes Wohnen: helle Räume, hochwertige Ausstattung, bodenbündige Duschen, Raffstores, südseitige Terrassen – für ein Zuhause mit Komfort und Lebensqualität.

 

Ein Platz zum Wohlfühlen - Highlights zum aktuellen Wohnbauprojekt:

  • Baumkirchen ist ein ruhiges, ländlich geprägtes Dorf und liegt zwischen Hall und Wattens auf der Sonnenseite des Inntals.

  • Auf einem ca. 2.700 m² großen Grundstück errichten wir ein funktionelles und durchdachtes Wohnbauprojekt mit drei unterirdisch, durch die Tiefgarage verbundenen Gebäuden.

  • Es werden 26 barrierefreie 2-, 3- und 4-Zimmer Wohnungen und 44 Garagenparkplätze entstehen.

  • Alle Gärten, Terrassen und Balkone sind nach Südwesten – zur Sonne hin – ausgerichtet.

  • Die Bauqualität und Ausstattung ist wie bei allen REALBAU Wohnbauprojekten energieeffizient, langlebig und hochwertig.

  • Im Sommer gekühlt und im Winter geheizt wird mittels nachhaltiger Grundwasserwärmepumpe

  • Der notwendige Strom wird so weit wie möglich über die hauseigene PV-Anlage produziert.

  • Für gutes Raumklima sorgt die Dreifachisolierverglasung der Fenster und Balkontüren und der inkludierte Sonnenschutz mittels elektrischen Raffstores.

  • Die Fußböden werden mit Echtholzparkett oder keramischen Fliesen belegt.

  • Auf den Balkonen verlegen wir geschmackvolles Feinsteinzeug und auf den Terrassen im Erdgeschoss hochwertige Betonplatten.

  • Leben in der Natur, mit schnellem Zugang zur Stadt: Durch das gut ausgebaute Öffi-Netz und die Nähe zur Tiroler Bundesstraße sowie zur Autobahn, eignet sich Baumkirchen bestens als Wohnort für Pendler:innen.

  • Notwendige Infrastruktur ist in den Nachbargemeinden gut vertreten und in wenigen Minuten erreichbar.

  • Erholung, Sport und Freizeitaktivitäten liegen direkt vor der Haustür in den angrenzenden Wiesen, Feldern und Wäldern, am Inn, den naheliegenden Fuß- und Radwegen sowie den Sportstätten in den Nachbargemeinden. 

  • Die Kaufabwicklung ist provisionsfrei und erfolgt über den Ratenzahlungsplan, wie im Bauträgervertragsgesetz vorgesehen.

  • Eigennutzer profitieren derzeit vom Wegfall der Grundbuchseintragungsgebühr von 1,1 %, bis zu einem Kaufpreis in der Höhe von Euro 500.000.

  • Grundrissänderungen und Sonderwünsche sind, abhängig vom Baufortschritt, noch möglich.

  • Der Baustart ist bereits erfolgt – die Bezugsfertigstellung ist im Sommer 2026, geplant.

Bitte kontaktieren Sie uns für weitere Details oder ein persönliches Gespräch, Sie erreichen uns unter +43 (0) 5223-90909, bzw. unter .

DREIKLANG steht für durchdachtes Wohnen: helle Räume, hochwertige Ausstattung, bodenbündige Duschen, Raffstores, südseitige Terrassen – für ein Zuhause mit Komfort und Lebensqualität.

Herrlicher Blick auf Wiesen, Felder und das Bergpanorama!
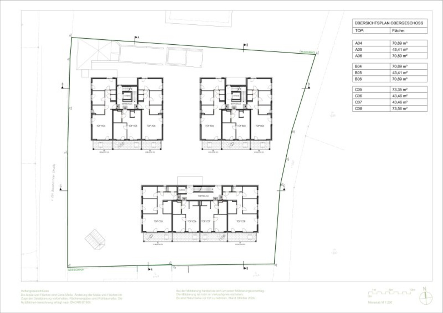
Die im 1. Stock gelegene, südlich ausgerichtete 3-Zimmer-Wohnung Top C08:

  • praktischer Grundriss mit geräumiger Diele und Abstellraum,

  • WC separat mit Fenster,

  • Badezimmer mit Dusche, Badewanne auf Wunsch möglich,

  • zwei Schlafzimmer mit südlicher Belichtung,

  • geräumiger offener Wohnraum, mit zentralem Esstisch (Einrichtungsvorschlag),

  • lichtdurchflutet mit Blick auf die umliegende Bergwelt,

  • südlich vorgelagerter Balkon mit langlebigem Plattenbelag,

  • rollstuhlgerecht und barrierefrei!

  • Beachten sie unsere nachhaltige und hochwertige Ausstattung und die Extras!

  • zwei Garagenparkplätze sind für diese Wohnung reserviert, zum Kaufpreis von je Euro 28.800,00

 

Haben wir Ihr Interesse geweckt? Kontaktieren Sie uns für Fragen, Details oder weiterführende Unterlagen!
Sie erreichen uns unter +43 (0) 5223-90909-1605, bzw. unter .

 


Infrastruktur / Entfernungen

Gesundheit
Arzt <850m
Apotheke <925m
Klinik <3.375m
Krankenhaus <3.075m

Kinder & Schulen
Schule <775m
Kindergarten <850m
Höhere Schule <8.800m
Universität <2.850m

Nahversorgung
Supermarkt <900m
Bäckerei <725m
Einkaufszentrum <7.825m

Sonstige
Bank <900m
Geldautomat <900m
Post <1.600m
Polizei <2.700m

Verkehr
Bus <125m
Straßenbahn <7.400m
Autobahnanschluss <925m
Bahnhof <1.075m

Angaben Entfernung Luftlinie / Quelle: OpenStreetMap



Weitere Merkmale
  • Bad mit Dusche
  • Boden: Fliesen, Parkett
  • Heizung: Erdwärme, Solar, Fußbodenheizung
  • Kabel/Satelliten-TV
  • Lift
  • Barrierefrei
  • Seniorengerecht
  • Rollstuhlgerecht
  • Ausrichtung Balkon/Terrasse: Süden
Kontaktinformationen
Realbau GmbH
Name:
Eva Maria Kremsmair
Adresse:
Brockenweg 2
6060 Hall in Tirol
Internet:
Telefon:

Dieses Objekt finanzieren