Tolle 3-Zimmerwohnung mit Terrasse, Palais Tannenberg

Tirol , Schwaz , Schwaz , Tannenberggasse 8
← Zur Ergebnisliste
images icon

3

Zimmer

100 m²

Wohnfläche

Preis

€ 630.000
Nebenkosten € 230,8
Preis Stellplatz € 30.000
pro Tiefgaragenplatz standard
Heizkosten (exkl. MwSt.) € 99,56
Stockwerk 1. OG
Badezimmer 1
Nebenräume 1
Terrasse 8,99 m²
Keller 2,66 m²
Fahrradraum Ja
(Tief-)Garage 2
HWB (kwh/m²a) 72,1
HWB-Klasse C
FGEE 1,23
FGEE-Klasse C
Baujahr 1700
Bautyp
  • Neubau/Erstbezug
Bauweise
  • Massiv
Verfügbar ab sofort
Energieausweis
Anzeigen ID 357128
Aktualisiert am 08.01.2026
Externe ID TB8 Top 09
Hofmeister Finanz & Immobilien GmbH
Name:
KommR Mag. Cornelia Hofmeister
Adresse:
Maria-Theresien-Straße 7 / 3. Stock
6020 Innsbruck
Internet:
Telefon:

Beschreibung des Objektes

Das um 1616 gebaute Palais Tannenberg-Enzenberg wurde ursprünglich im gotischen Stil errichtet und wurde um 1700 von Graf Tannenberg durch Architekt Gump im barocken Stil umgebaut.

In diesem denkmalgeschützten Altstadthaus finden sich eine ganze Reihe an schützenswerten Merkmalen, die im Rahmen der nunmehr durch die Fa. Projekt Wohnbau GmbH durchgeführten Revitalisierung allesamt erhalten geblieben sind. Tonnen- und Kreuzgewölbe, Dachbalken mit Eisenbändern, historische Handläufe und Treppengeländer und vieles mehr waren wichtige zu erhaltende Details, die Dank des Feingespürs und dem ästhetischen Geschick seitens des Bauträgers in das Raumkonzept des Gebäudes meisterlich eingefügt werden konnten. Nach mehrjähriger Bauzeit befinden sich nunmehr 18 hervorragend konzipierte 2 bis 4- Zimmer-Wohnungen mit 60 bis 120 m² Wohnfläche. Alle Wohnungen bieten höchste Qualität in der Bauausführung samt Komfortlüftung, ein angenehmes Raumklima und exklusive Ausstattung und Raffinesse begeistern. So finden Sie edelste Terrazzoböden und Landhausdielen, hochwertige Bäder und tolle Einbauküchen mit Markengeräten, Licht- und Lampendesign, maßgeschneiderte Stores und Verdunkelungsvorhänge und hochwertigen Sonnenschutz.

Die Beheizung des Gebäudes erfolgt über eine Gas-Zentralheizung, die bei bedarf auf eine Grundwasserwärmepumpe umgerüstet werden kann. Die Warmwasseraufbereitung erfolgt über eine Solaranlage, welche auf dem Nachbargebäude Tannenberggasse 6 aufgebaut ist. Kontrollierte Wohnraumlüftung und Wärmerückgewinnung ergeben einen Passiv-Hausstandard, der niedrige Betriebskosten verspricht und sich in einem HWB von 72,1 Klasse C und einem fGEE von 1,23 Klasse C dokumentiert.


Der Wohnung ist ein Kellerabteil zur exklusiven Nutzung zugeordnet. Dieses wird als unentgeltliches und unbefristetes Nutzungsrecht überlassen und bietet zusätzlichen und praktischen Stauraum.


Lage


Die Wohnanlage in der Tannenberggasse 8 befindet sich in einer der gefragtesten Lagen von Schwaz – ruhig gelegen und dennoch mitten im Geschehen. Nur ca. 100m entfernt laden die Stadtgalerien Schwaz zum Einkaufen, Bummeln und Genießen ein. Von Supermärkten über Cafés bis zu abwechslungsreichen Shops finden Sie hier alles für den täglichen Bedarf – direkt vor der Haustüre.


Freizeit & Natur – alles in Reichweite

Für aktive Familien, Naturliebhaber und Erholungssuchende bietet Schwaz ein breites Freizeitangebot direkt in der Umgebung:


  1. Der Innradweg und zahlreiche Spazierwege laden zu Ausflügen in die Natur ein.
  2. Sportbegeisterte finden in der Nähe Fitnessstudios, Sportplätze und ein Hallenbad.
  3. Die umliegenden Berg- und Wandergebiete wie Kellerjoch, Pillberg oder die Achensee Region sind schnell erreichbar und bieten Sommer wie Winter beste Bedingungen für Bewegung und Entspannung.
  4. Familien mit Kindern profitieren von kurzen Wegen zu Kindergärten, Schulen und Spielplätzen.


Trotz der naturnahen Lage ist die Verkehrsanbindung optimal – der Bahnhof sowie die Autobahnauffahrt sind in wenigen Minuten erreichbar und ermöglichen eine schnelle Verbindung nach Innsbruck, Kufstein oder ins Zillertal


Auf ein wirtschaftliches Naheverhältnis zwischen Makler und Verkäufer wird ausdrücklich hingewiesen.


Alle Angaben und Unterlagen basieren auf Informationen, die uns vom Eigetümer sowie von Dritten zur Verfügung gestellt wurden und sind daher ohne Gewähr auf Richtigkeit bzw. Vollständigkeit.

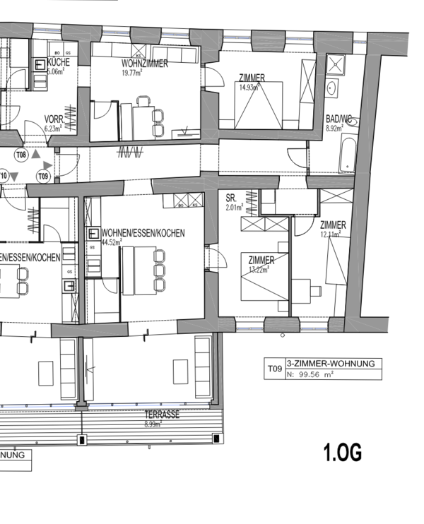
Objektart3-Zimmer-Wohnung mit Terrasse
Wohnfläche99,56 m²
BautypRevitalisierter Altbau im Denkmalschutz/Erstbezug
Kaufpreis Wohnung€ 630.000,–
Kaufpreis Tiefgarageje € 30.000,–
Zimmer gesamt3
davon Schlafzimmer2
Badezimmer1
Terrasse8,99 m²
Stockwerk1. OG (gesamt 7 Stockwerke: 2 UG`s. , EG, 2 OG´s, 1.DG und 2.DG)
Baujahrvor 1900/ Neubau-Revitalisierung 2018-2025
Kellerabteil ER-B092,66 m²
Heizung/WarmwasserGas-Zentralheizung, Fußbodenheizung, Photovoltaikanlage
Lüftung/KühlungKomfortlüftung, Zulufterwärmung mit Wärmerückgewinnung, Zuluftkühlung über Kühlagrregat
PKW-Stellplatzje Stellplatz € 30.000,– (Standardgröße)
EnergieausweisHWB 72,1Klasse C

fGEE 1,23 Klasse C
Verfügbarkeitab sofort
Weitere Merkmale
  • Einbauküche
  • Wohnküche / Offene Küche
  • Bad mit Badewanne, Dusche, Fenster
  • Boden: Dielen, Fliesen
  • Heizung: Gas, Zentralheizung, Fußbodenheizung, Photovoltaik
  • Kabel/Satelliten-TV
  • Lift
  • Klimatisiert
  • Ausrichtung Balkon/Terrasse: Südwesten
Kontaktinformationen
Hofmeister Finanz & Immobilien GmbH
Name:
KommR Mag. Cornelia Hofmeister
Adresse:
Maria-Theresien-Straße 7 / 3. Stock
6020 Innsbruck
Internet:
Telefon:

Dieses Objekt finanzieren