3
Zimmer
84 m²
Wohnfläche
Preis
€ 540.000
1,1 % Grundbuch-Eintragungsgebühr 3,5 % Grunderwerbssteuer 1,8 - 2,0 % Vertragserrichtung
Nebenkosten
€ 136,17
Einmalkosten
3 % + 20% Ust.
Heizkosten (exkl. MwSt.)
€ 173,96
Stockwerk
EG
Badezimmer
1
Garten
59,32 m²
Terrasse
Ja
Abstellraum
Ja
Fahrradraum
Ja
Gesamtanzahl Stellplätze
1
(Tief-)Garage
1
HWB (kwh/m²a)
26.40
HWB-Klasse
B
FGEE
0.72
FGEE-Klasse
A
Baujahr
2019
Bautyp
- Neubau (bis 5 Jahre)
Verfügbar ab
nach Vereinbarung
Anzeigen ID
354109
Aktualisiert am
02.01.2026
Externe ID
Kossler_1380
Name:
Andreas Kössler
Adresse:
Leopoldstraße 2
6020 Innsbruck
6020 Innsbruck
Internet:
Telefon:
Moderne Maisonette-Wohnung
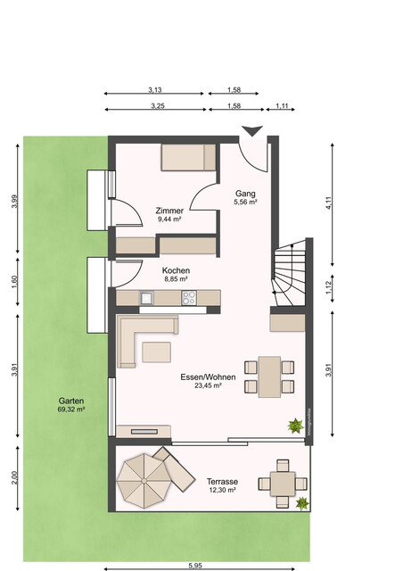
Willkommen in Ihrem neuen Zuhause in der bezaubernden Gemeinde Götzens! Diese Maisonette-Wohnung, erbaut im Jahr 2019, besticht durch modernen Stil und einen neuwertigen Zustand. Mit einer großzügigen Wohnfläche von 84 m² auf zwei Stockwerke (EG & UG) bietet dieses Objekt genügend Platz für individuelle Wohnträume. Die Wohnung umfasst drei Zimmer, darunter zwei gemütliche Schlafzimmer, die ideal für Familien oder Paare sind. Das geräumige Badezimmer ist mit hochwertigen Fliesen ausgestattet und der Wohnbereich ermöglich den Zugang zum Garten. Vom Schlafzimmer im Untergeschoss gelangt man zu einem Lichthof mit kleinem Außenbereich (siehe Foto). Es gibt ebenfalls einen zweiten Wohnungs-Zugang über die Tiefgarage in das untere Geschoss. Ein TG-Platz kann um € 30.000,- erworben werden.Die Ortschaft Götzens beeindruckt durch ihre ruhige und dennoch zentrale Lage, nur wenige Kilometer von der lebendigen Landeshauptstadt Innsbruck entfernt. Götzens bietet eine perfekte Mischung aus naturnahem Wohnen und städtischer Erreichbarkeit, was insbesondere für Naturliebhaber und Outdoor-Enthusiasten attraktiv ist. Ein M-Preis, sowie eine Tankstelle, Bushaltestellen und ein Arzt sind fußläufig in wenigen Minuten erreichbar.
Willkommen in Ihrem neuen Zuhause in der bezaubernden Gemeinde Götzens! Diese Maisonette-Wohnung, erbaut im Jahr 2019, besticht durch modernen Stil und einen neuwertigen Zustand. Mit einer großzügigen Wohnfläche von 84 m² auf zwei Stockwerke (EG & UG) bietet dieses Objekt genügend Platz für individuelle Wohnträume. Die Wohnung umfasst drei Zimmer, darunter zwei gemütliche Schlafzimmer, die ideal für Familien oder Paare sind. Das geräumige Badezimmer ist mit hochwertigen Fliesen ausgestattet und der Wohnbereich ermöglich den Zugang zum Garten. Vom Schlafzimmer im Untergeschoss gelangt man zu einem Lichthof mit kleinem Außenbereich (siehe Foto). Es gibt ebenfalls einen zweiten Wohnungs-Zugang über die Tiefgarage in das untere Geschoss. Ein TG-Platz kann um € 30.000,- erworben werden.Die Ortschaft Götzens beeindruckt durch ihre ruhige und dennoch zentrale Lage, nur wenige Kilometer von der lebendigen Landeshauptstadt Innsbruck entfernt. Götzens bietet eine perfekte Mischung aus naturnahem Wohnen und städtischer Erreichbarkeit, was insbesondere für Naturliebhaber und Outdoor-Enthusiasten attraktiv ist. Ein M-Preis, sowie eine Tankstelle, Bushaltestellen und ein Arzt sind fußläufig in wenigen Minuten erreichbar.
Weitere Merkmale
- Einbauküche
- Bad mit Badewanne
- Gäste-WC
- Boden: Fliesen
- Heizung: Gas, Solar, Zentralheizung
- Kabel/Satelliten-TV
- Ausrichtung Balkon/Terrasse: Süden, Südwesten
Kontaktinformationen
Name:
Andreas Kössler
Adresse:
Leopoldstraße 2
6020 Innsbruck
6020 Innsbruck
Internet:
Telefon:
Dieses Objekt finanzieren