exklusive 2-Zimmer-Gartenwohnung in Telfes

Tirol , Innsbruck - Land , Telfes im Stubai , Franz-de-Paula-Penz-Weg 6
← Zur Ergebnisliste
images icon

2

Zimmer

64 m²

Wohnfläche

Preis

€ 397.000
Preis Stellplatz
im Kaufpreis enthalten
Stockwerk Erdgeschoss
Badezimmer 1
Nebenräume 1
Garten 47,16 m²
Terrasse 8,40 m²
Keller 6,50 m²
Abstellraum 2,61 m²
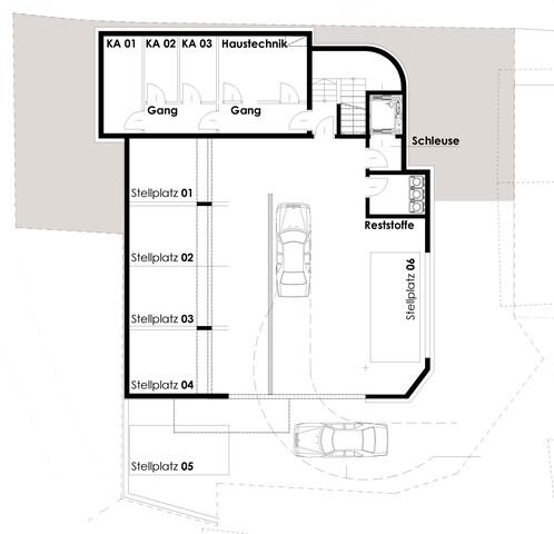
(Tief-)Garage 2
HWB (kwh/m²a) 45
HWB-Klasse B
FGEE 0,47
FGEE-Klasse A++
Baujahr 2026
Bautyp
  • Neubau/Erstbezug
Bauweise
  • Massiv
Anzeigen ID 359499
Aktualisiert am 27.12.2025
Auer & Steiner Wohnbau GmbH
Name:
Bmstr. DI (FH) Christian Steiner
Adresse:
Dorf 83
6152 Trins
Internet:
Telefon:

Exklusives Wohnbauprojekt in Telfes im Stubaital – 3 hochwertige Eigentumswohnungen

in traumhafter Lage


Inmitten der malerischen Bergkulisse des Stubaitals entsteht ein modernes Wohnbauprojekt mit nur drei exklusiven Wohneinheiten. Die Architektur vereint zeitgemäßes Design mit alpinem Charme und fügt sich harmonisch in die ruhige Umgebung von Telfes ein. Das Gebäude umfasst drei individuell gestaltete Wohnungen mit Wohnflächen zwischen ca. 60 m² und 100 m². Jede Einheit bietet großzügige Grundrisse, lichtdurchflutete Räume und hochwertige Materialien. Private Außenbereiche wie Terrassen oder Gärten laden zum Entspannen mit Blick auf die

Tiroler Alpen ein.


Besonderheiten

  1. Ein Baukörper mit insgesamt 3 Eigentumswohnungen
  2. Optimale Süd-Westorientierung
  3. Eigene Tiefgarage
  4. Innenliegendes Stiegenhaus mit Lift
  5. Eigenen Garten und/oder Terrassen
  6. Helle, modern gestaltete Wohnungen
  7. 3-Scheiben-Isolierverglasungen
  8. Geringe Betriebskosten durch Energiesparauslegung
  9. Luftwärmepumpenheizung
  10. Fußbodenheizung in den Wohnräumen
  11. Warmwasserbereitung mittels Elektroboiler in den Wohnungen
  12. Komfortlüftungsanlage
  13. Photovoltaikanlage als Unterstützung für den Allgemeinstrom
  14. Hoher Qualitätsstandard durch Massivbauweise
Weitere Merkmale
  • Bad mit Dusche
  • Heizung: Wärmepumpe, Photovoltaik
  • Lift
  • Barrierefrei
  • Ausrichtung Balkon/Terrasse: Westen
Kontaktinformationen
Auer & Steiner Wohnbau GmbH
Name:
Bmstr. DI (FH) Christian Steiner
Adresse:
Dorf 83
6152 Trins
Internet:
Telefon:

Dieses Objekt finanzieren