Schöne 2-Zimmer-Gartenwohnung Neubau

Tirol , Innsbruck - Land , Götzens , Hubangerweg 8
← Zur Ergebnisliste
images icon

2

Zimmer

41 m²

Wohnfläche

Preis

€ 339.000
Zahlungsmodalitäten siehe Text
Preis Stellplatz € 29.500
Tiefgaragenplatz zusätzlich Euro 29.500,--
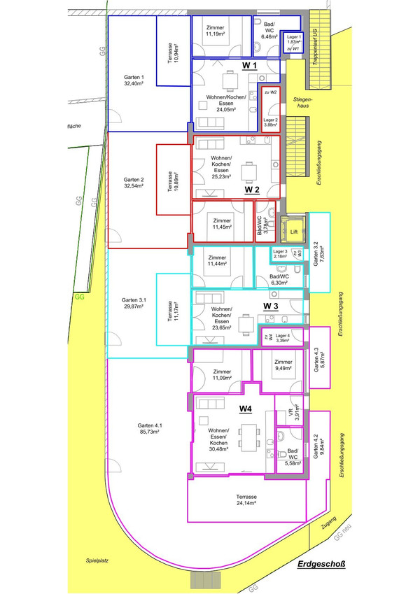
Stockwerk Erdgeschoss
Badezimmer 1
Nebenräume 1
Garten 37,50 m²
Terrasse 11,17 m²
Keller 2,54 m²
Abstellraum 2,18 m²
Fahrradraum 25,00 m²
(Tief-)Garage 1
HWB (kwh/m²a) 52,2
HWB-Klasse C
FGEE 0,71
FGEE-Klasse A
Baujahr 2025
Bautyp
  • Neubau/Erstbezug
Bauweise
  • Massiv
Verfügbar ab ab sofort
Anzeigen ID 351151
Aktualisiert am 03.12.2025
Externe ID HAW 8 / Top 3
Hofmeister Finanz & Immobilien GmbH
Name:
KommR Mag. Cornelia Hofmeister
Adresse:
Maria-Theresien-Straße 7 / 3. Stock
6020 Innsbruck
Internet:
Telefon:

Im nordöstlichen Teil von Götzens entsteht auf rund 865 m² Grundfläche eine nette Energiespar-Wohnanlage mit insgesamt 10 Wohnungen auf 3 Etagen. Im Untergeschoss befindet sich eine Tiefgarage mit 16 Parkplätzen, Abstellmöglichkeit für Fahrräder und einspurige Fahrzeuge, Müll- und Technikraum sowie 10 Kellerabteile zwischen rd. 3 bis 5 m². Ein offenes Stiegenhaus führt in jedes Stockwerk, zusätzlich führt ein Lift von der Tiefgarage in jede Etage. Die Zufahrt zur Tiefgarage erfolgt über das Haus Hubangerweg 12.

Beschreibung des Objektes:

Die Wohnanlage wird in Niedrigenergiebauweise errichtet. Die Beheizung der Anlage erfolgt mit einer klimafreundlichen Wärmepumpe, der dafür notwendige Strom wird hauptsächlich über eine 15 kWp-Photovoltaikanlage produziert. Jede Wohnung verfügt entweder über einen Garten mit Terrasse, einen großzügigen Balkon oder eine herrliche Terrasse. Der Zugang zu den Wohnungen im Haus 12 erfolgt über ein mittig geführtes Treppenhaus, das Haus 8 hat ein offenes Stiegenhaus, zusätzlich führt hier ein Lift von der Garagenebene in jede Wohnetage.

Die Ausstattung der einzelnen Wohnungen ist hochwertig, dies beinhaltet 3-fachverglaste Fenster und Balkon- und Terrassentüren in Aluminium-Kunststoffausführung, thermostatgesteuerte Fußbodenheizung, Bodenfliesen 1. Wahl bzw. Eichen-Parkettböden sowie hochwertige Sanitärausstattung.

Lage:

Götzens liegt auf rd. 870 m auf einer sonnigen Mittelgebirgsterrasse in unmittelbarer Nähe zu Innsbruck und bietet neben einer ausgezeichneten Infrastruktur auch alle Vorteile eines 4200-Einwohnerdorfes mit ländlichem Charakter. Viele Freizeitmöglichkeiten bieten sich hier in nächster Umgebung, wie z.B. das Freizeitzentrum Axams mit Sauna und Schwimmbad, die Axamer Lizum oder die Mutterer Alm für Ski- und Rodelfans aber auch tolle Wander- und Montainbikerouten.

Bauträger:

inn living WOHNBAU GmbH, GF Kurt Erhart, 6020 Innsbruck, Grabenweg 72, FN396181w

Treuhänder/Vertragserrichter:

Rechtsanwalt Mag. Michael Mikuz, 6020 Innsbruck, Herzog-Friedrich-Str. 39

Immobilienmakler:

Hofmeister Finanz & Immobilien GmbH, 6020 Innsbruck, Maria-Theresien-Straße 7/III, FN340802f

GF KommR Mag. Cornelia Hofmeister und KommR Friedrich Hofmeister

Ausstattung gemäß vorliegender Bau-und Ausstattungsbeschreibung Stand Mai 2024

Nebenkosten:

Grunderwerbsteuer 3,5% des Kaufpreises

Eintragungsgebühr 1,1% (Wegfall bei Ersterwerb)

Kaufvertragskosten und Treuhandschaft 1,5% zuzügl. Barauslagen, Beglaubigungskosten und Umsatzsteuer

Maklerprovision 3% + MWSt.

Wir weisen ausdrücklich auf ein wirtschaftliches Naheverhältnis zwischen Makler und Bauträger hin. Die im Exposé angeführten Inhalte beruhen teilweise auf Angaben Dritter und sind deshalb ohne Gewähr. Die beigefügten Pläne sind aus dem Bauakt entnommen und können in Natur unterschiedlich sein.

Weitere Merkmale
  • Bad mit Dusche, Fenster
  • Boden: Fliesen, Parkett
  • Heizung: Wärmepumpe, Zentralheizung, Fußbodenheizung, Photovoltaik
  • Kabel/Satelliten-TV
  • Lift
  • Barrierefrei
  • Seniorengerecht
  • Gartennutzung
  • Ausrichtung Balkon/Terrasse: Westen
Kontaktinformationen
Hofmeister Finanz & Immobilien GmbH
Name:
KommR Mag. Cornelia Hofmeister
Adresse:
Maria-Theresien-Straße 7 / 3. Stock
6020 Innsbruck
Internet:
Telefon:

Dieses Objekt finanzieren