Neugötzens: Ruhige Garconniere mit 2 Balkone

Tirol , Innsbruck - Land , Götzens , Neugötzens
← Zur Ergebnisliste
images icon

1

Zimmer

39 m²

Wohnfläche

Gesamtmiete

€ 690
inkl. Betriebskosten
Kaution € 2.000
Stockwerk 1. OG
Balkon 12,00 m²
Keller 2,00 m²
Freiplatz 1
Verfügbar ab sofort
Anzeigen ID 364740
Aktualisiert am 31.03.2026
Silvia O.

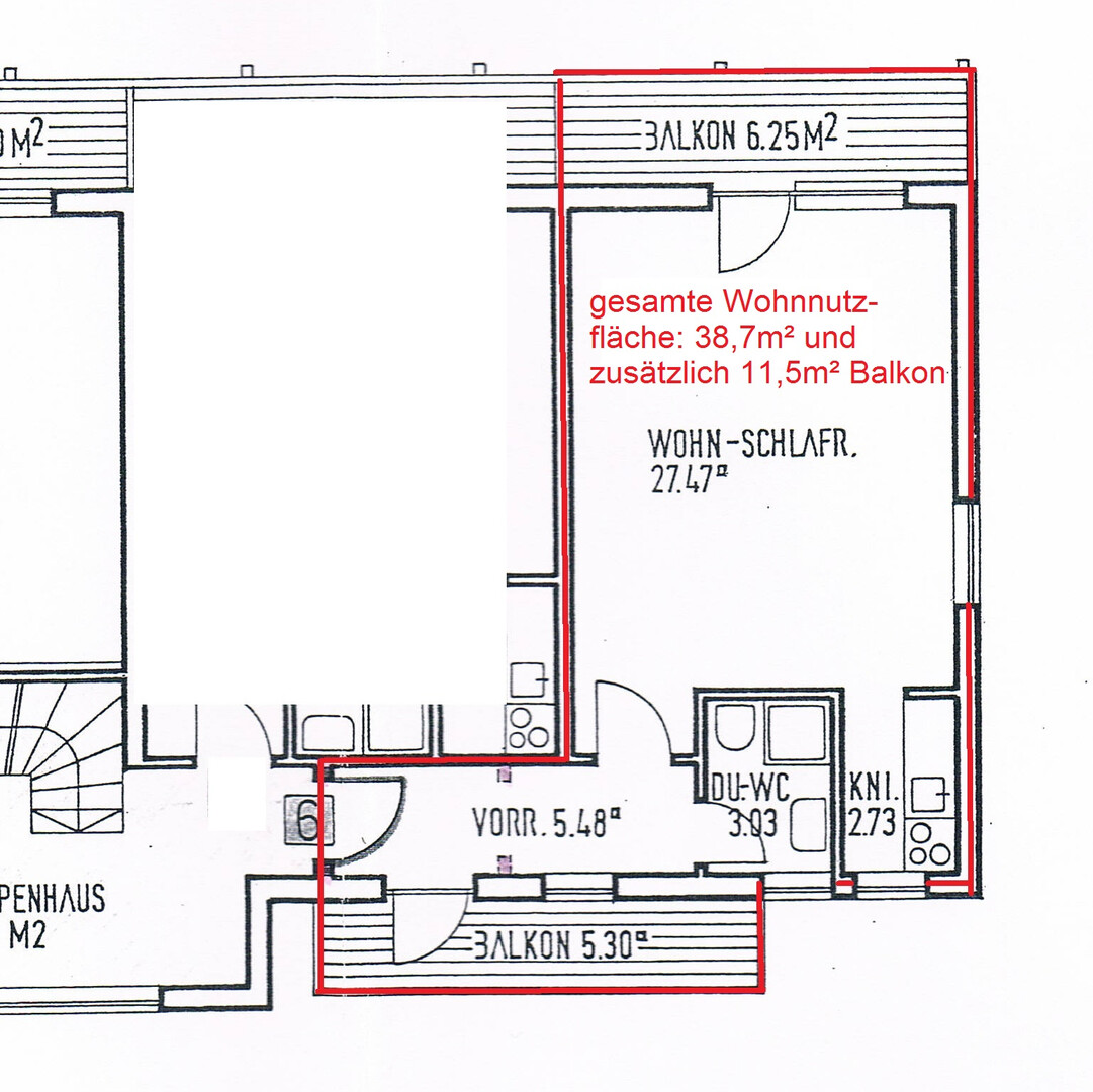
RUHIGE GARCONNIERE MIT 2 BALKONE

Vorraum-Garderobe: 5,5m²

Wohn-Schlafraum: 27,5m²; mit Sat-Anschluss

2 Balkone: (ostseitig 6,25m² und westseitig 5,3m²)

Bad: 3m²; mit Dusche, WC, Waschbecken

Küche: 2,7m²; separat, möbliert, Herd mit Backrohr

eigener Autoabstellplatz im Freien

Heizung: Zentralheizung, Gas

Bezug ab sofort

Miete für 1 Person Euro 690.- inkl. Betriebskosten

Strom, Internet extra (nicht in Betriebskosten inkludiert)

Ausrichtung der Wohnung: Ost-Süd-Westseite, ruhige Lage;

von der Straße abgewandt;

Diese ruhige und helle Wohnung am Siedlungsrand von Neugötzens befindet sich im 1. Stock einer kleinen Wohnanlage. Von den beiden Balkonen kann man sowohl den Sonnenaufgang als auch den Sonnenuntergang genießen. Die Fenster der Garconniere sind an der Ost-, Süd- und Westseite angeordnet. Die nächste Bushaltestelle befindet sich nur 50 Meter entfernt.

Gartenmitbenutzung;

Kellerabteil (ca. 1,8m²);

Bitte keine Haustiere. Rauchen ist in der Wohnung nicht erlaubt.

Ohne Maklerprovision.

Kaution: Euro 2000.-

Weitere Merkmale
  • Einbauküche
  • Gartennutzung
Kontaktinformationen
Silvia O.
Dieses Objekt finanzieren
Wichtige Informationen
  • seriöse Anbieter verlangen keine Zahlungen im Vorfeld einer Besichtigung
  • seriöse Anbieter fragen nicht nach Ihren Kontodetails