Privatverkauf - DG-Wohnung neben Schafwiese in Hötting

Tirol , Innsbruck - Stadt , Innsbruck , Kohlweg 11/14
← Zur Ergebnisliste
images icon

3

Zimmer

92 m²

Wohnfläche

Preis

€ 740.000
Nebenkosten € 192,08
Betriebskosten: € 124,02 + 10% USt.= € 136,42Betriebsk. Haus 11: € 50,60 + 10% USt.= € 55,66Heizkosten Akonto: € 74,00 + 20% USt.= € 88,80Rücklage Anteil: € 117,98 + 0% USt.= € 117,98Gesamtsumme: € 366,60 + 32,26 = € 398,86
Einmalkosten € 34.040
3,5% Grunderwerbssteuer 1,1% GrundbucheintragungskostenKeine Maklergebühren
Preis Stellplatz € 25.000
Badezimmer 1
Nebenräume 4
Garten 1.976,00 m²
Terrasse 43,00 m²
Balkon 6,00 m²
Wintergarten Ja
Abstellraum Ja
(Tief-)Garage 1
Freiplatz 1
HWB (kwh/m²a) 128
FGEE 1,7
Baujahr 1970
Bautyp
  • Gebraucht/Gepflegt
Bauweise
  • Massiv
Verfügbar ab sofort
Energieausweis
Anzeigen ID 361860
Aktualisiert am 18.02.2026
Dokumente
Fabian Haslinger
Telefon:

Schweren Herzens müssen wir uns leider von einer sehr speziellen Wohnung voller Erinnerungen trennen. Da niemand von uns in Innsbruck lebt, möchten wir einen Käufer finden der diese Wohnung genauso schätzt wie wir es tun, und die Geschichte dieses schönen Ortes fortschreibt. Aber auch objektiv betrachtet hat die Wohnung sehr viel zu bieten.

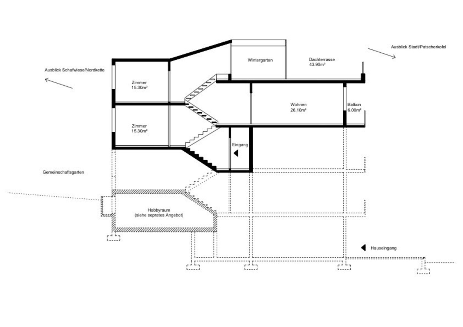
Das Haus wurde 1970 erbaut und stellt mit seinem außergewöhnlichen Maisonette-Raumkonzept eine architektonische Besonderheit dar, welche das Gefühl erweckt man würde ein Haus bewohnen. Durch regelmäßige Instandsetzungen befindet sich die Anlage in einem ausgezeichneten Zustand.

Die Wohnung erstreckt sich über drei Ebenen und bietet durch ihre Großzügigkeit, die Flut an Tageslicht und die Ausblicke eine äußerst freundliche Stimmung. Die große Dachterrasse mit Blick auf Patscherkofel, Nordkette und Stadt bietet zudem einen herausragend atmosphärischen Ort zum Verweilen inmitten der Naturszene.

Der Wohnbereich ist weitläufig angelegt und bietet zahlreiche Gestaltungsmöglichkeiten. Der vorgelagerte Balkon ist nützlich um zb.B. den Essbereich zu erweitern. Die nebengelegene Küche ist kompakt aber effizient und könnte bei Bedarf in den Wohnraum integriert werden. Drei Zimmer bieten genug Platz für eine junge Familie mit zwei Kindern oder sind ideal für eine Wohngemeinschaft geeignet.

Ein Kellerabteil ist der Wohnung zugeordnet. Eine Garagenbox kann für € 25.000,- zusätzlich erworben werden. Außerdem gibt es im selben Haus noch einen Hobbyraum mit ca. 25m2.

Instandsetzungen

Rücklagenstand zuletzt: 87.000€ (Ende 2024, 2025 noch nicht von Hausverwaltung bekannt gegeben).

Instandsetzungen Haus zuletzt:

WD-Fassade & Abdichtung Dach (2015), Balkongeländer & -belag (2016), Portal, Eingangsbereich & Stiegenhaus (2019) etc.

Es wird laufend saniert und der Zustand des Hauses ist daher sehr gut. In naher Zukunft soll die Abdichtung unterhalb der Dachterrasse gemacht werden, diese soll aus den vorhandenen Rücklagen bezahlt werden.

Instandsetzungen Wohnung zuletzt:

Fußböden Stiege und Vorräume, Badewanne & Fenster teilweise (2013); Wintergarten, Stiegengeländer & Malarbeiten (2025); etc.

Die Elektroanlage bedarf einer Sanierung undwurde aus logistischen Gründen nicht vor dem Verkauf abgewickelt. Der Eigentümer bietet die Abwicklung noch vor Übergabe an einen potenziellen Käufer an.

Bei Bedarf können Belege gezeigt werde.

Besichtigungen

Da es sich um einen Privatverkauf handelt und ich nicht in Innsbruck lebe, kann bei Interesse der Raum an folgenden Terminen mit vorheriger Terminvereinbarung besichtigt werden:

* Sonntag 22.2. 9-16 Uhr

* Sonntag 8.3. 9-18 Uhr

* Montag 9.3. 9-19 Uhr

Keine Makleranfragen erwünscht!

Weitere Merkmale
  • Einbauküche
  • Bad mit Badewanne, Fenster
  • Gäste-WC
  • Boden: Parkett
  • Heizung: Zentralheizung
  • Kabel/Satelliten-TV
  • Wasch-/Trockenraum
  • WG-geeignet
  • Rollladen
  • Gartennutzung
  • Ausrichtung Balkon/Terrasse: Süden
Kontaktinformationen
Fabian Haslinger
Telefon:

Dieses Objekt finanzieren
Wichtige Informationen
  • seriöse Anbieter verlangen keine Zahlungen im Vorfeld einer Besichtigung
  • seriöse Anbieter fragen nicht nach Ihren Kontodetails