Anlegerwohnung in der Höttinger Au

Tirol , Innsbruck - Stadt , Innsbruck , Höttinger Au 72
← Zur Ergebnisliste
images icon

2

Zimmer

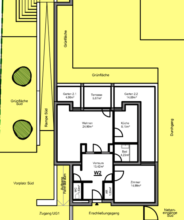
69 m²

Wohnfläche

Preis

€ 209.000
Nebenkosten € 138,2
exkl. Heizkosten
Einmalkosten
3,5 % Grunderwerbsteuer
1,1 % Eintragungsgebühr
3,0 % Vermittlungsprovision zzgl. 20% USt
Kosten für Vertragserrichtung
Preis Stellplatz € 20.000
TG-Stellplatz optional
Grundstücksgröße 4971 m²
Stockwerk Erdgeschoss
Badezimmer 1
Garten 35,88 m²
Terrasse 5,67 m²
Keller 6,10 m²
HWB (kwh/m²a) 80
HWB-Klasse C
FGEE 1,76
FGEE-Klasse D
Baujahr 1992
Bautyp
  • Gebraucht/Gepflegt
Bauweise
  • Massiv
Verfügbar ab sofort
Befristung unbefristet
Anzeigen ID 358168
Aktualisiert am 03.02.2026
WOFA Immobilienentwicklungs GmbH
Name:
WOFA
Adresse:
6020 Innsbruck
Telefon:

Das Anlageobjekt befindet sich in einer Wohnanlage im Innsbrucker Stadtteil Höttiner Au. Die Infrastruktur und die Verkehrsanbindung können als sehr gut bezeichnet werden.

Die Wohnung ist unbefristet vermietet. Die kostendeckende Miete und der EVB belaufen sich in Summe auf 481,80 € exkl. Umsatzsteuer.

Es wird darauf hingewiesen, dass die Liegenschaft den Bestimmungen des WGG unterliegt.

Weitere Merkmale
  • Heizung: Gas
  • Lift
  • Barrierefrei
  • Gartennutzung
  • Ausrichtung Balkon/Terrasse: Westen
Kontaktinformationen
WOFA Immobilienentwicklungs GmbH
Name:
WOFA
Adresse:
6020 Innsbruck
Telefon:

Dieses Objekt finanzieren