7
Zimmer
240 m²
Wohnfläche
Preis
€ 578.000
Einmalkosten
3 % zzgl. 20% USt.
Grundstücksgröße
358 m²
Badezimmer
4
Garten
173,00 m²
Terrasse
Ja
Balkon
Ja
Verfügbar ab
sofort
Anzeigen ID
364031
Aktualisiert am
26.03.2026
Externe ID
351239_CRT-151
Name:
Manuel Hofer
Adresse:
Fürstenweg 8
6020 Innsbruck
6020 Innsbruck
Internet:
Telefon:
project : Maierl im Dorf
Im Herzen von Arzl, charmant neben der Kirche gelegen, kommt ein historischer Tiroler Einhof zur Veräußerung.
Die Landwirtschaft wurde längst aufgegeben, weshalb es keinerlei grundverkehrsrechtliche Hindernisse gibt. Geblieben ist ein charmanter, historischer Bauernhof mit Wohntrakt, kleinem Stall und Tenne im historischen Stil des TirolerEinhofes.
Architekt DI Martin Schranz hat sich dem dörflichen Juwel angenommen und zwei einzigartige Loftwohnungen entwickelt.
Es gelingt ihm fabelhaft, den unglaublichen Charme dieser „casa in pietra“ zu erhalten, gleichzeitig aber modernen, hellen, raumgreifenden Wohnraum zu schaffen.
Da entsteht ein ikonisches, unverwechselbares Haus mit Charakter, perfekt eingebettet in das historische Ensemble diese ehemaligen Bauerndörfleins, das mittlerweile eng mit dem Stadtzentrum verbunden ist und zugleich die Lebensqualität einer grünen Vorstadt mit hervorragender Infrastruktur, Nahversorgern, Schulen und öffentlichen Verkehrsanbindungen bietet.
Die beiden Wohnungen erstrecken sich zweigeschoßig, einmal über 95 m² Wohnfläche und
einmal über 145 Quadratmeter, mit sehr hohen Lufträumen, großzügigen Terrassen, heimeligem Garten, drei Abstellplätzen, Kellerabteilen etc.
Der Mairl im Hof ist in der Schutzzone gelegen (SOG, nicht Denkmalschutz!)
Dadurch ist es von besonderem Wert, dass die vorliegende und schon bezahlte Planung von Architekt DI Martin Schranz bereits genehmigt ist, und ein rechtskräftiger Baubescheid vorliegt.
Es kann also gleich losgehen!
Natürlich können die Pläne noch an den individuellen Bedarf angepasst werden. Der aufrechte Baubescheid ist eine Kann- Bestimmung, kein Muss.
Vielleicht möchte jemand Büro und Wohnen kombinieren, eine Praxis etablieren, vielleicht aber auch eine großzügige Wohnung mit Einliegerwohnung im Generationen-Modell gestalten...
Das Haus bietet viele Möglichkeiten.
Eines steht fest: Es wird kein Haus von der Stange, sondern etwas Besonderes, ein Kleinod,
ein Loft- House im historischen Kontext.
Um den Käufern möglichst viele Hürden aus dem Weg zu schaffen, haben wir Architekt DI Peter Aster gebeten, eine, auf aktuellen Preisen beruhende, möglichst exakte Kostenschätzung auszuarbeiten. Diese liegt bei.
Es gilt: Wer etwas Besonderes will braucht ein wenig Mut, nur das Gewöhnliche kommt von selbst.
project „Maierl im Dorf“ - Baureif und perfekt durchdacht
Die Fakten:
• Grundstücksgröße: 358 m2 (laut Grundbuch, Grenzkataster vermessen)
• Widmung: Landwirtschaftliches Mischgebiet
• Form: Langgezogen, polygonal
• Bestand: Altes Bauernhaus mit Wohntrakt (Süd) und Stall (Nord), technische Lebensdauer überschritten
• Erschließung: Voll erschlossen (Strom IKB, Wasser– städtische Trinkwasserversorgung, Telefon,
Kanalanschluss)
Projekt und Planung:
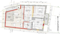
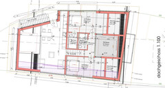
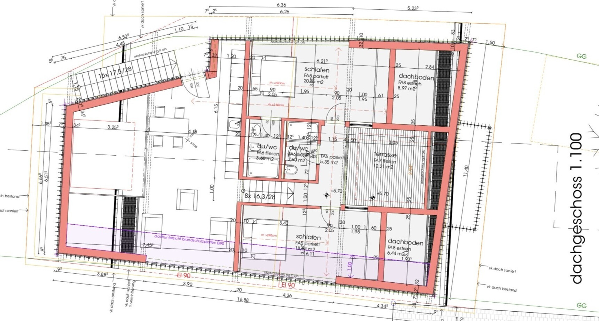
Das bewilligte Projekt umfasst ein modernes Mehrfamilienhaus mit zwei Wohneinheiten und einer Gesamtwohnfläche von ca. 240 m2.
Die Planung überzeugt mit:
• großzügigen, lichtdurchfluteten Grundrissen
• modernen, offenen Wohnkonzepten
• großzügigen Freiflächen
• 3 Stellplätzen sowie Keller- und Abstellflächen
In diesem Sinne wünschen wir Ihnen ein angeregtes Planstudium und zeigen Ihnen unseren Tiroler Einhof, seine Ausblicke, seine Chancen und Möglichkeiten gerne vor Ort.
Im Herzen von Arzl, charmant neben der Kirche gelegen, kommt ein historischer Tiroler Einhof zur Veräußerung.
Die Landwirtschaft wurde längst aufgegeben, weshalb es keinerlei grundverkehrsrechtliche Hindernisse gibt. Geblieben ist ein charmanter, historischer Bauernhof mit Wohntrakt, kleinem Stall und Tenne im historischen Stil des TirolerEinhofes.
Architekt DI Martin Schranz hat sich dem dörflichen Juwel angenommen und zwei einzigartige Loftwohnungen entwickelt.
Es gelingt ihm fabelhaft, den unglaublichen Charme dieser „casa in pietra“ zu erhalten, gleichzeitig aber modernen, hellen, raumgreifenden Wohnraum zu schaffen.
Da entsteht ein ikonisches, unverwechselbares Haus mit Charakter, perfekt eingebettet in das historische Ensemble diese ehemaligen Bauerndörfleins, das mittlerweile eng mit dem Stadtzentrum verbunden ist und zugleich die Lebensqualität einer grünen Vorstadt mit hervorragender Infrastruktur, Nahversorgern, Schulen und öffentlichen Verkehrsanbindungen bietet.
Die beiden Wohnungen erstrecken sich zweigeschoßig, einmal über 95 m² Wohnfläche und
einmal über 145 Quadratmeter, mit sehr hohen Lufträumen, großzügigen Terrassen, heimeligem Garten, drei Abstellplätzen, Kellerabteilen etc.
Der Mairl im Hof ist in der Schutzzone gelegen (SOG, nicht Denkmalschutz!)
Dadurch ist es von besonderem Wert, dass die vorliegende und schon bezahlte Planung von Architekt DI Martin Schranz bereits genehmigt ist, und ein rechtskräftiger Baubescheid vorliegt.
Es kann also gleich losgehen!
Natürlich können die Pläne noch an den individuellen Bedarf angepasst werden. Der aufrechte Baubescheid ist eine Kann- Bestimmung, kein Muss.
Vielleicht möchte jemand Büro und Wohnen kombinieren, eine Praxis etablieren, vielleicht aber auch eine großzügige Wohnung mit Einliegerwohnung im Generationen-Modell gestalten...
Das Haus bietet viele Möglichkeiten.
Eines steht fest: Es wird kein Haus von der Stange, sondern etwas Besonderes, ein Kleinod,
ein Loft- House im historischen Kontext.
Um den Käufern möglichst viele Hürden aus dem Weg zu schaffen, haben wir Architekt DI Peter Aster gebeten, eine, auf aktuellen Preisen beruhende, möglichst exakte Kostenschätzung auszuarbeiten. Diese liegt bei.
Es gilt: Wer etwas Besonderes will braucht ein wenig Mut, nur das Gewöhnliche kommt von selbst.
project „Maierl im Dorf“ - Baureif und perfekt durchdacht
Die Fakten:
• Grundstücksgröße: 358 m2 (laut Grundbuch, Grenzkataster vermessen)
• Widmung: Landwirtschaftliches Mischgebiet
• Form: Langgezogen, polygonal
• Bestand: Altes Bauernhaus mit Wohntrakt (Süd) und Stall (Nord), technische Lebensdauer überschritten
• Erschließung: Voll erschlossen (Strom IKB, Wasser– städtische Trinkwasserversorgung, Telefon,
Kanalanschluss)
Projekt und Planung:
Das bewilligte Projekt umfasst ein modernes Mehrfamilienhaus mit zwei Wohneinheiten und einer Gesamtwohnfläche von ca. 240 m2.
Die Planung überzeugt mit:
• großzügigen, lichtdurchfluteten Grundrissen
• modernen, offenen Wohnkonzepten
• großzügigen Freiflächen
• 3 Stellplätzen sowie Keller- und Abstellflächen
In diesem Sinne wünschen wir Ihnen ein angeregtes Planstudium und zeigen Ihnen unseren Tiroler Einhof, seine Ausblicke, seine Chancen und Möglichkeiten gerne vor Ort.
Weitere Merkmale
- Bad mit Badewanne, Dusche, Fenster
- Heizung: Wärmepumpe, Fußbodenheizung
- Ausrichtung Balkon/Terrasse: Norden, Südwesten
Kontaktinformationen
Name:
Manuel Hofer
Adresse:
Fürstenweg 8
6020 Innsbruck
6020 Innsbruck
Internet:
Telefon:
Dieses Objekt finanzieren