Privatverkauf in Zirl: Energieeffizientes Zweifamilienhaus, in sonniger Ruhelage, sofort beziehbar!

Tirol , Innsbruck - Land , Zirl
← Zur Ergebnisliste
images icon

9

Zimmer

285 m²

Wohnfläche

Preis

€ 1.700.000
Gesamtobjekt: € 1.700.000,- Einheit Top 1: € 990.000,- Einheit Top 2: € 740.000,-
Grundstücksgröße 530 m²
Badezimmer 3
Nebenräume 3
(Tief-)Garage Ja
Freiplatz Ja
HWB (kwh/m²a) 45,6
HWB-Klasse C
FGEE 0,74
FGEE-Klasse A
Bautyp
  • Gebraucht/Gepflegt
Bauweise
  • Holz
  • Massiv
Verfügbar ab sofort
Anzeigen ID 361367
Aktualisiert am 05.02.2026
Dokumente
Cindy Oberhofer
Telefon:

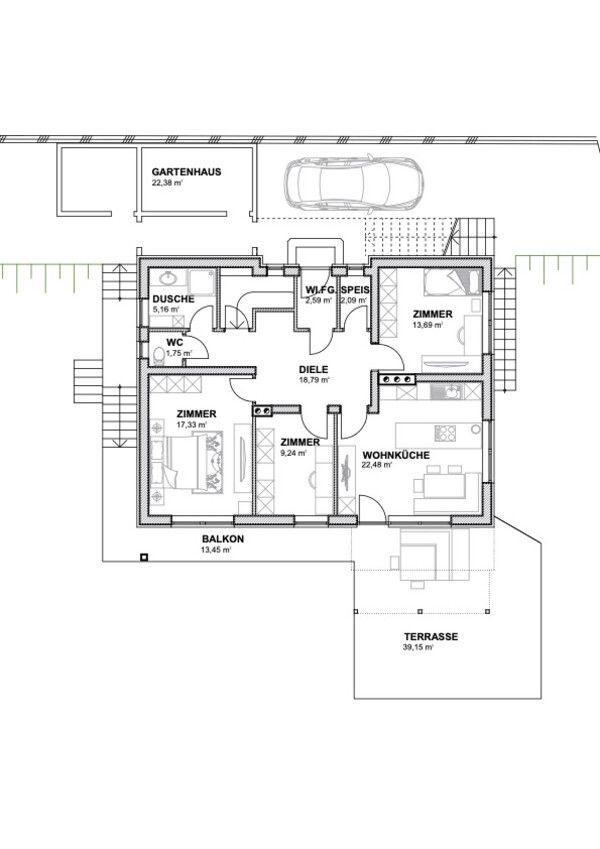
Zweifamilienhaus mit zwei getrennten Einheiten in sonniger Ruhelage von Zirl


Dieses gepflegte Haus bietet insgesamt ca. 285 qm Wohnfläche und ist durch die Aufteilung vielseitig nutzbar:


  1. Als gemeinsames Zuhause für zwei Generationen (bzw zwei befreundete Familien),
  2. Eigennutzung einer Einheit bei gleichzeitiger Vermietung oder
  3. der getrennte Erwerb der Einheiten.


Top 1: Bj. 1974,

laufend energetisch saniert (ca. 175 qm mit Garten, Terrasse und Balkon)


Top 2: Bj. 2014,

Dachgeschoss Neubau 2014 (ca. 110 qm mit Balkon, Gartenhaus und Terrasse)


Energiekosten: Durch die Dämmung, 3-fach verglaste Fenster, eine hocheffiziente Lambda Wärmepumpe und PV-Anlage mit Speicher und Notstrom sind die Energiekosten fast unschlagbar! Für das gesamte Haus belaufen sich die kosten (Strom und Heizung) auf durchschnittlich € 1.000,-. jährlich.


Außerdem kann in beiden Wohneinheiten mit Holz geheizt werden. In der Top 1 durch den neuwertigen, moderen Zusatzherd und in der Top 2 durch den eingebauten Designofen.


Kaufoptionen:


  1. Gesamtobjekt: € 1.700.000,-
  2. Einheit Top 1: € 990.000,-
  3. Einheit Top 2: € 740.000,-



Verkauf von Privat an Privat:

Da wir das Haus privat verkaufen, entfällt für Sie die

Provision (ca. € 60.000 Ersparnis). Wir legen Wert auf eine persönliche Übergabe um alle Fragen beantworten zu können.


Wir freuen uns Ihnen unser Haus persönlich und unverbindlich zeigen zu dürfen!



Einmalkosten:


Vertragserrichtungskosten: ca. 0,75 % zzgl. USt und Barauslagen


Grunderwerbsteuer: 3,5 %


Grundbuchseintragung: 1,1 % - Unter Umständen könnte hier eine Befreiung gemäß dem Beschluss der Österreichischen Bundesregierung für die Eintragung des Eigentumsrechts sowie die Eintragung einer eventuellen Pfandurkunde möglich sein.


Alle Angaben werden nach bestem Wissen gemacht.

Irrtum und Zwischenverkauf vorbehalten.

Als Rechtsgrundlage gilt alleine der abgeschlossene Kaufvertrag.

Weitere Merkmale
  • Wohnküche / Offene Küche
  • Bad mit Badewanne, Dusche, Fenster
  • Gäste-WC
  • Boden: Fliesen, Fertigparkett
  • Heizung: Wärmepumpe, Ofen/Kamin, Photovoltaik
  • Kabel/Satelliten-TV
  • Sauna
  • Möbliert
  • Ausrichtung Balkon/Terrasse: Süden, Südwesten
Kontaktinformationen
Cindy Oberhofer
Telefon:

Dieses Objekt finanzieren
Wichtige Informationen
  • seriöse Anbieter verlangen keine Zahlungen im Vorfeld einer Besichtigung
  • seriöse Anbieter fragen nicht nach Ihren Kontodetails