Wattens Neubau Einfamilienhaus mit Doppelgarage, provisionsfrei

Tirol , Innsbruck - Land , Wattens , Lange Gasse
← Zur Ergebnisliste
images icon

4

Zimmer

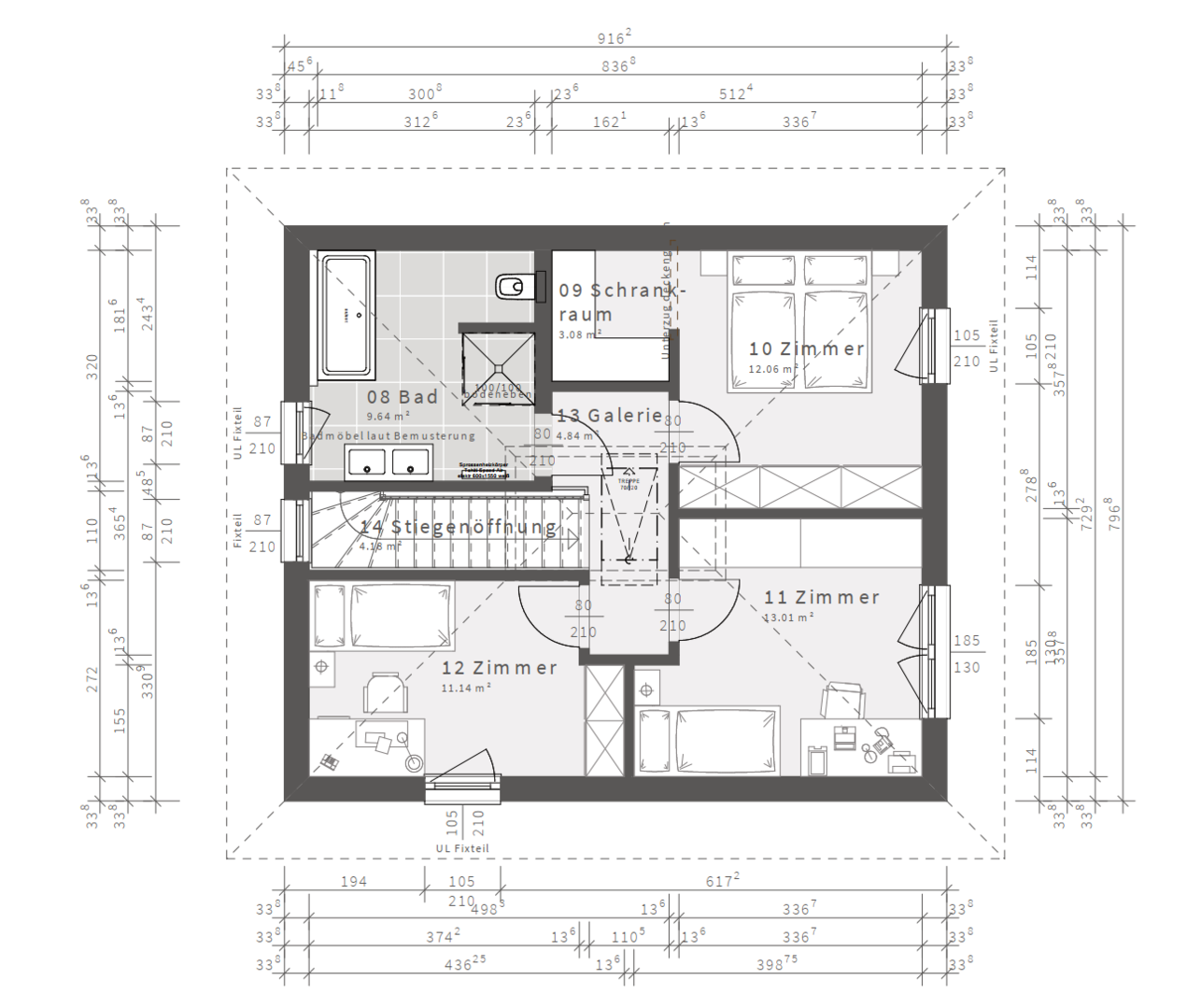
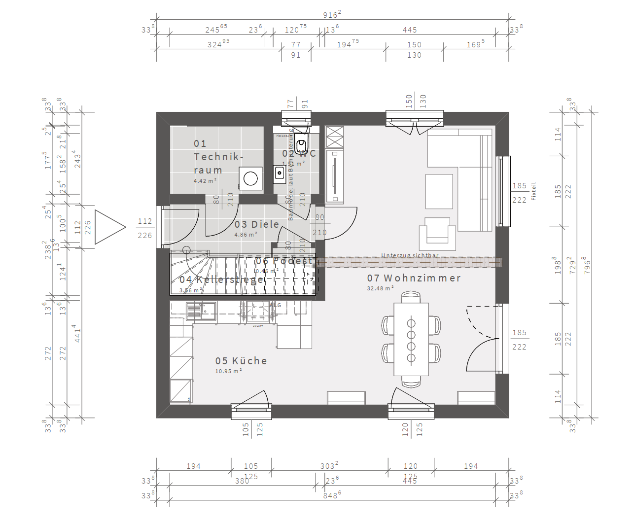
136 m²

Wohnfläche

Preis

€ 895.000
Einmalkosten
Grunderwerbsteuer 3,5%
Grundbucheintragungsgebühr 1,1%
Kosten für Vertragserrichtung und Treuhandschaft 1,5% + 20% MWSt (alles nur vom Grundstückspreis)
KEINE MAKLERPROVISION!
Grundstücksgröße 823 m²
Garten Ja
Terrasse Ja
Keller Ja
Dachboden Ja
Abstellraum Ja
(Tief-)Garage 2
Freiplatz 2
HWB (kwh/m²a) 39
Baujahr 2026
Bautyp
  • Neubau/Erstbezug
Bauweise
  • Fertigteil
Verfügbar ab Herbst 2026
Anzeigen ID 298474
Aktualisiert am 27.02.2026
Alfred Steiner
Telefon:

In der Marktgemeinde Wattens, ca. 15 Autominuten von der Landeshauptstadt Innsbruck entfernt, planen wir zwei Einfamilienhäuser in Fertigteilbauweise (ELK Haus).

Die großen Grundstücke befinden sich in ruhiger Lage im Süden von Wattens, angrenzend an Einfamilienhäuser, Wiesen und einen kleinen Wald. Die Grundstücke weisen auch einen kleineren als Wald gewidmeten Teil auf.

Alle Geschäfte des täglichen Lebens, der Kindergarten und Schulen sind zu Fuß in wenigen Minuten erreichbar.

Die Innenaufteilung sowie das Design des Hauses planen wir gemeinsam mit Ihnen Ihren Wünschen entsprechend, sodass Ihr persönlicher Wohntraum wahr werden kann.

Haus 1 (West) - Preis € 895.000, -

  • Belagsfertiges Einfamilienhaus (Fertighaus ELK) mit einer Wohnfläche von ca. 117 m2
  • Grundstück ca. 622 m² und als Wald gewidmet ca. 325 m², Gesamt 947 m²
  • Rohbaukeller inkl. Doppelgarage im UG
  • 2 zusätzliche Autoabstellplätze (Carport möglich)
  • Fußbodenheizung mit Luftwärmepumpe
  • Beschattung mit elektrischen Rollläden

Sonderausstattung (Terrassenüberdachung, Balkon etc.) sind im Preis nicht inbegriffen, können aber auf Anfrage mit eingeplant und errichtet werden.

Gerne übernehmen wir auch den Innenausbau bis zur Ausbaustufe "schlüsselfertig" für Sie. Die Kosten dafür belaufen sich bei Haus 1 auf ca. € 52.000, -.

Nicht enthalten sind die Anschluss- und Erschließungskosten der Marktgemeinde Wattens, die Nebenkosten für Grundbuchseintragung und Kaufvertragserstellung für das Grundstück.

*Ausstattungsliste auf Anfrage

KEINE MAKLERPROVISION!

Haus 2 (Ost) - Preis € 895.000, -

Im Preis inkludiert:

  • Belagsfertiges Einfamilienhaus (Fertighaus ELK) mit einer Wohnfläche von ca. 136 m2
  • Grundstück ca. 616 m² und als Wald gewidmet ca. 207 m², Gesamt 823 m²
  • Rohbaukeller inkl. Doppelgarage im UG
  • 2 zusätzliche Autoabstellplätze (Carport möglich)
  • Fußbodenheizung mit Luftwärmepumpe
  • Beschattung mit elektrischen Rollläden
  • Sonderausstattung (Terrassenüberdachung, Balkon etc.) sind im Preis nicht inbegriffen, können aber auf Anfrage mit eingeplant und errichtet werden.
  • Gerne übernehmen wir auch den Innenausbau bis zur Ausbaustufe "schlüsselfertig" für Sie. Die Kosten dafür belaufen sich bei Haus 2 auf ca. € 57.000, -.

Sonderausstattung (Terrassenüberdachung, Balkon etc.) sind im Preis nicht inbegriffen, können aber auf Anfrage mit eingeplant und errichtet werden!

Nicht enthalten sind die Anschluss- und Erschließungskosten der Marktgemeinde Wattens, die Nebenkosten für Grundbuchseintragung und Kaufvertragserstellung für das Grundstück.

*Ausstattungsliste auf Anfrage

KEINE MAKLERPROVISION!

Weitere Merkmale
  • Gäste-WC
  • Boden: Parkett
  • Heizung: Wärmepumpe
  • Rollladen
  • Gartennutzung
  • Ausrichtung Balkon/Terrasse: Westen
Kontaktinformationen
Alfred Steiner
Telefon:

Dieses Objekt finanzieren
Wichtige Informationen
  • seriöse Anbieter verlangen keine Zahlungen im Vorfeld einer Besichtigung
  • seriöse Anbieter fragen nicht nach Ihren Kontodetails