Privatverkauf Baugrundstück ganzjährig sonnig - Patsch - Blick ins Stubaital - Genehmigungen vorhanden

Tirol , Innsbruck - Land , Patsch
← Zur Ergebnisliste
images icon

378 m²

Grundstücksgröße

Preis

€ 395.000
Einmalkosten
Privatverkauf, Provisionsfrei

Kaufnebenkosten:
3,5 % Grunderwerbsteuer
1,1 % Grundbucheintragung
2 % + USt. + Barauslagen / Beglaubigung Kosten Rechtsanwalt / Notar
Verfügbar ab ab sofort
Anzeigen ID 356331
Aktualisiert am 16.01.2026
Privatanzeige

Nette Nachbarn gesucht!

Einzigartiges Baugrundstück mit 378 m² in leichter Hanglage – ideal für ein Einfamilienhaus mit ca. 150 – 180 m² Wohnfläche, Parkplätze und Doppelgarage, zwei Terrassen und Garten.

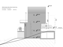
Ein Entwurf der Architekten Kröss & Köberl zeigt als Orientierung eine Bebauungsmöglichkeit auf.

Das Grundstück liegt in einem ruhigen Natur- bzw. Wohngebiet an einer wenig befahrenen Gemeindestraße (Sackgasse). Die Lage ist ganzjährig sonnig, nach Südwesten ausgerichtet, mit freiem und unverbaubarem Blick ins Stubaital und auf die Gletscher – ein Ausblick, der jeden Tag begeistert.

Vorteile für Ihr Bauvorhaben

Viele notwendige Behördengänge sind bereits erledigt, und die wesentlichen Genehmigungen liegen vor. Dadurch sparen Sie wertvolle Zeit und können unmittelbar mit der konkreten Planung und Einreichung Ihres Bauprojekts starten.

Erschließung

Wasser- und Stromanschluss in unmittelbarer Nähe (an der Gemeindestraße)

Lebensqualität

Hier genießen Sie die Ruhe einer ländlichen Umgebung, kombiniert mit der Nähe zur Alpenstadt Innsbruck (10 Minuten).

Ob Wandern, Radfahren, Skifahren (Patscherkofelbahn mit Auto in 3 Minuten erreichbar) oder einfach die Tiroler Natur genießen – Freizeitmöglichkeiten gibt es in Hülle und Fülle.

Innsbruck bietet darüber hinaus ein urbanes Flair mit hervorragender Gastronomie, Kulturangeboten und zahlreichen Einkaufsmöglichkeiten.

Infrastruktur

Durch die Autobahnausfahrt Patsch ist das Grundstück optimal an Innsbruck angebunden und auch über Igls oder Aldrans bequem erreichbar.

Patsch bietet eine sehr gute Infrastruktur:

  1. gute Verkehrsanbindung
  2. Nahversorger (Mpreis, mit Bankomat)
  3. Arzt, Kindergarten und Volksschule
  4. Vielfältige Spazier- und Wanderwege in sonniger Lage

Dank zentraler Lage und guter Autobahnanbindung erreichen Sie schnell Italien, Deutschland oder die Schweiz.


Kontakt:

Bitte klicken Sie auf „Anbieter kontaktieren“.


Privatverkauf! Kein Maklervertrag erwünscht!


Vorname:

Nachname:

Telefonnummer:

E-Mail:


Hinweis: Alle Angaben dienen als unverbindliche Vorinformation und erfolgen ohne Gewähr.

Kontaktinformationen
Privatanzeige
Dieses Objekt finanzieren
Wichtige Informationen
  • seriöse Anbieter verlangen keine Zahlungen im Vorfeld einer Besichtigung
  • seriöse Anbieter fragen nicht nach Ihren Kontodetails