Landeck-Bruggen: ATTRAKTIVE GESCHÄFTSRÄUME für Gewerbe, Arzt-/Therapieeinrichtungen etc. zu vermieten (205 m²) u. 15 Parkplätzen

Tirol , Landeck , Landeck , Bruggfeldstrasse 31
← Zur Ergebnisliste
images icon

205 m²

Nutzfläche

Gesamtmiete

Preis auf Anfrage
Freiplatz 15
HWB (kwh/m²a) 143
FGEE 1,44
Anzeigen ID 359266
Aktualisiert am 19.12.2025
IMMOBILIEN MANAGEMENT DR. KOECK
Name:
Dr. Markus Köck
Adresse:
Malserstrasse 39
6500 Landeck
Internet:
Telefon:

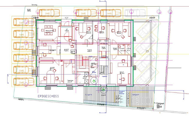
Landeck: Attraktive Gechäftsräumlichkeiten im ERDGESCHOSS mit vielen Räumen und Empfangsbereich für Gewerbe, Arzt-/Therapieeinrichtungen etc. zu vermieten (205 m²) und 15 Parkplätzen



• Freie Gewerbeflächen mit 205 m² für Büro oder Dienstleistungsbetrieb(e) oder Ordinationsräumlichkeiten für Arztpraxis oder Therapieeinrichtung etc.


• Lage: Zentrumsnähe von Landeck im Stadtteil Bruggen

• ERDGESCHOSS - DIREKT an der Bundestrasse

• Sehr hohe Visibilität


• Gesamtfläche: 205 m²

• EG: Empfang, 6 Büroräume, 1 Besprechnungszimmer, Teeküche, Technikraum, 2 WC

• barrierefreier Zugang


• 15 Parkplätze beim Haus für Mitarbeiter und Kunden vorhanden


• Stadtzentrum in 10 Gehminuten erreichbar


• Bushaltestelle beim Haus (20 m)

• Entfernung Autobahn 1 km


• Verfügbar ab Jänner 2026



• Preis: Miete und Betriebskosten auf Anfrage


• Kaution: 3 Bruttomonatsmieten


• Energieausweis: HWB 143 kWh/m2, fGEE 1,44


• Vermittlungsprovision: 2 Bruttomonatsmieten zzgl. 20% MwSt


• Nebenkosten: Vertragserrichtungskosten


Für weitere Informationen oder für eine unverbindliche Besichtigung stehen wir gerne zur Verfügung.


Immobilien Management Dr. Köck, 6500 Landeck


Wichtige Inforamtion:

Wir bitten um Verständnis, dass wir auf Grund der Nachweispfllicht gegenüber dem Vermieter nur dann Anfragen beantworten und weitere Informationen zur Verfügung stellen können, wenn sie uns Ihre vollständigen Kontaktdaten (Name, Adresse, Telefonnummer, Email) mitteilen. Danke.

Weitere Merkmale
  • Heizung: Öl
  • Barrierefrei
Kontaktinformationen
IMMOBILIEN MANAGEMENT DR. KOECK
Name:
Dr. Markus Köck
Adresse:
Malserstrasse 39
6500 Landeck
Internet:
Telefon:

Dieses Objekt finanzieren