101 m²
Nutzfläche
Gesamtmiete
€ 2.862,18
Mietvertragserrichtung: Geschäft: € 360,-- brutto TG-Platz: € 72,-- brutto
Miete pro m2
€ 20,02
Netto-Kaltmiete
€ 2.021,6
Kaltmiete
€ 2.425,92
Nebenkosten
€ 363,55
Kaution
3 Bruttomonatsmieten
Stockwerk
EG
HWB (kwh/m²a)
46.00
HWB-Klasse
B
FGEE
0.64
FGEE-Klasse
A+
Baujahr
2024
Verfügbar ab
Februar 2026
Anzeigen ID
310613
Aktualisiert am
26.11.2025
Externe ID
Kossler_1080
Name:
Andreas Kössler
Adresse:
Leopoldstraße 2
6020 Innsbruck
6020 Innsbruck
Internet:
Telefon:
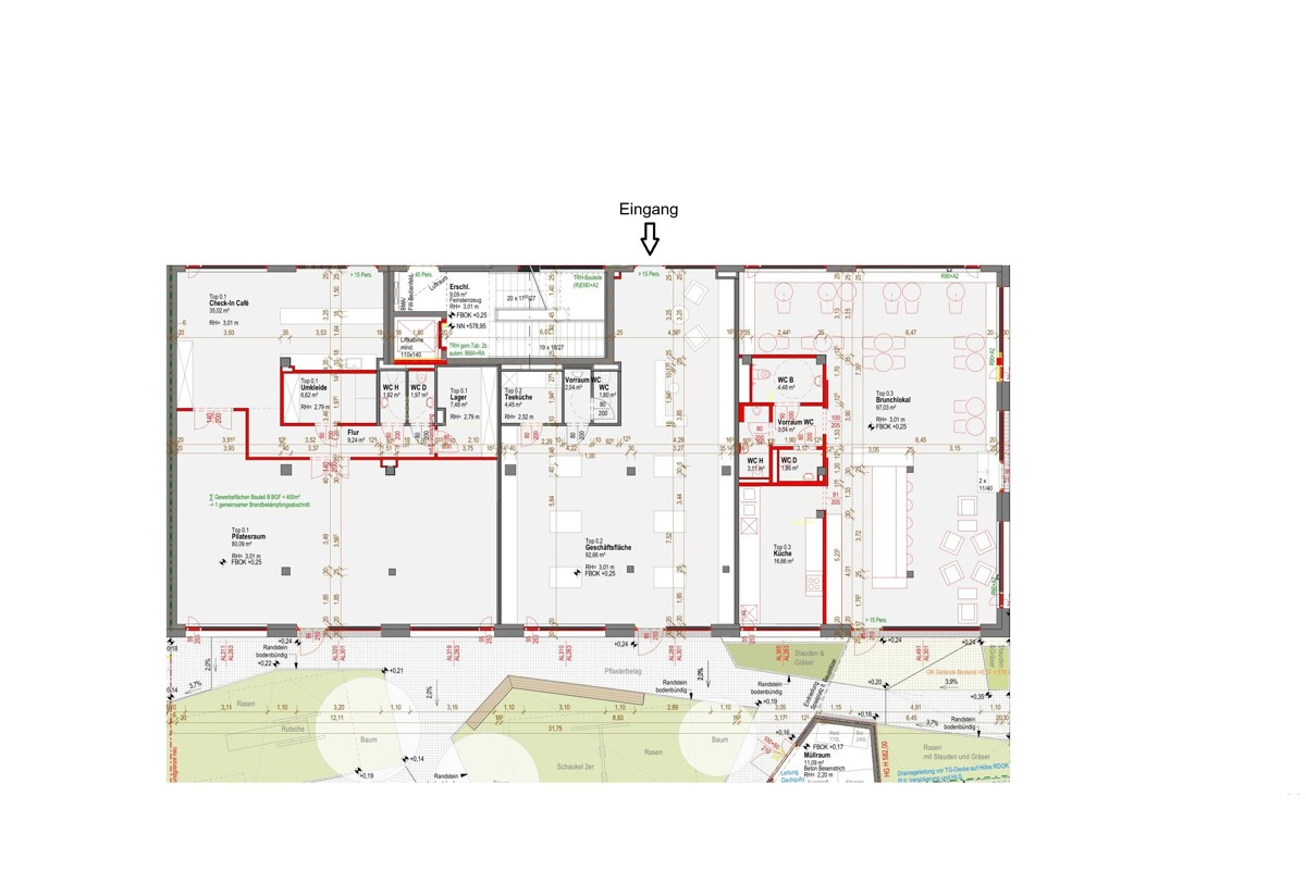
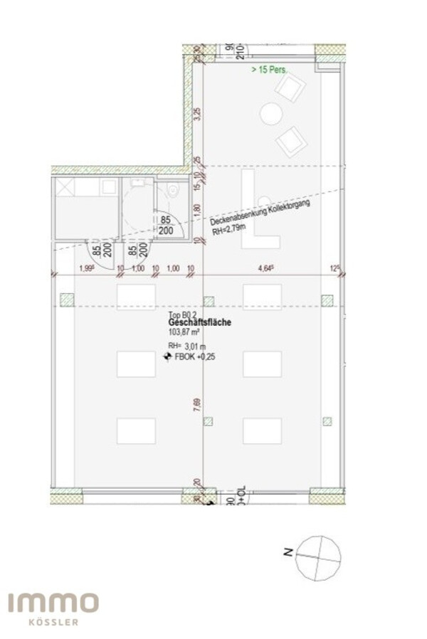
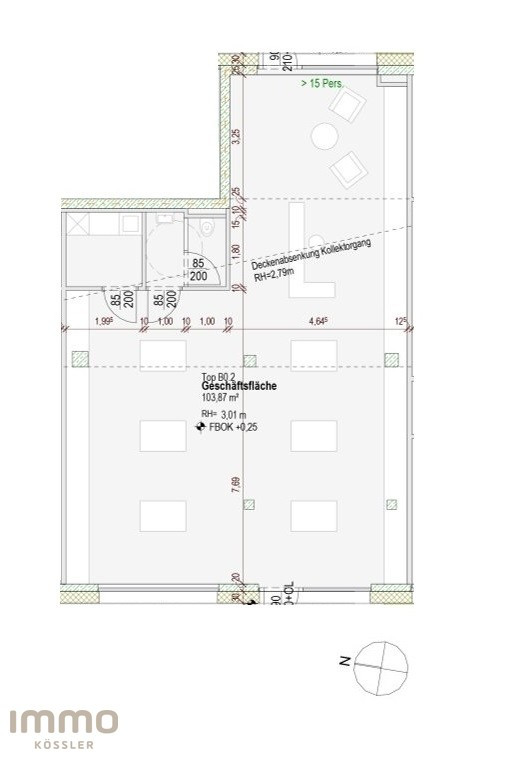
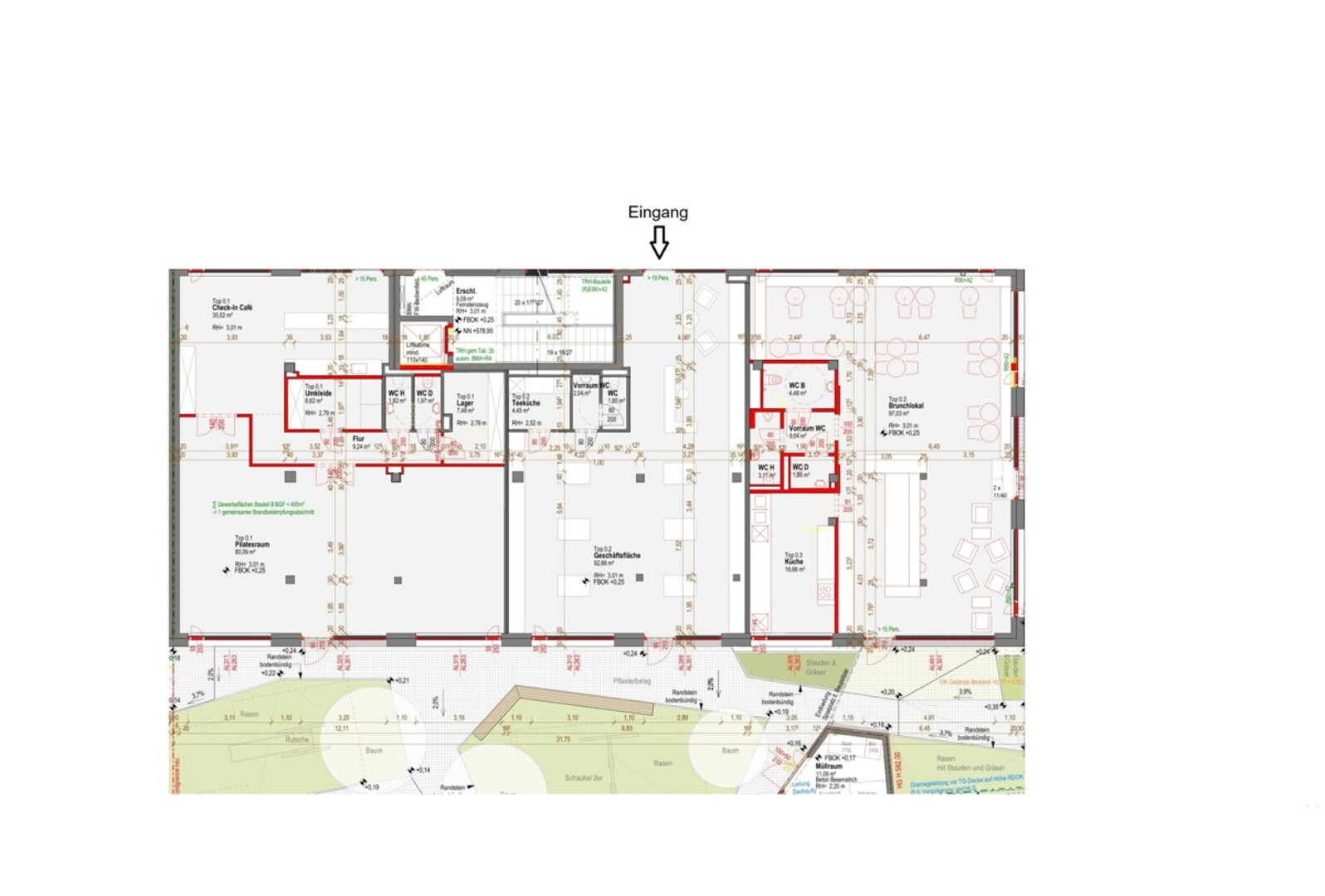
Geschäftsfläche B0.2 im EG
Dieses Neubauprojekt der Firma Strabag, bietet Ihnen eine hervorragende Gelegenheit, Ihr Unternehmen in einem hochmodernen, 2024 erbauten Wohn- und Geschäftsgebäude zu etablieren. Die großzügige Nutzfläche von 103 m² bietet ausreichend Platz für Ihre individuellen Geschäftsideen und ermöglicht Ihnen, Ihre Räumlichkeiten ganz nach Ihren Wünschen zu gestalten. Ab Februar 2026 steht Ihnen dieses exklusive Mietobjekt als Edelrohbau zur Verfügung. Hier treffen innovative Architektur und erstklassige Infrastruktur aufeinander und schaffen ein Umfeld, in dem Ihr Geschäft florieren kann. Das Projekt befindet sich gerade im Baubeginn, somit können Sie sich für Ihr neues Geschäftslokal oder Ihre Praxisräumlichkeiten im Erdgeschoss auch mit einbringen und bei Entscheidungen über die Ausführung mitbestimmen.Die neuen Geschäftslokale liegen optimal in Innsbruck. Nur eine Straße neben der Triumphpforte in Wilten sind sie für jeden schnell und einfach zu erreichen. Auch zahlreiche Laufkundschaft wird in dieser Gegend spontan auf Ihr Geschäft aufmerksam, denn in der Nähe finden sich, so zentral gelegen, natürlich zahlreiche Gastronomien, Cafés und Bäcker sowie die Maria-Theresien Haupteinkaufsstraße!
Dieses Neubauprojekt der Firma Strabag, bietet Ihnen eine hervorragende Gelegenheit, Ihr Unternehmen in einem hochmodernen, 2024 erbauten Wohn- und Geschäftsgebäude zu etablieren. Die großzügige Nutzfläche von 103 m² bietet ausreichend Platz für Ihre individuellen Geschäftsideen und ermöglicht Ihnen, Ihre Räumlichkeiten ganz nach Ihren Wünschen zu gestalten. Ab Februar 2026 steht Ihnen dieses exklusive Mietobjekt als Edelrohbau zur Verfügung. Hier treffen innovative Architektur und erstklassige Infrastruktur aufeinander und schaffen ein Umfeld, in dem Ihr Geschäft florieren kann. Das Projekt befindet sich gerade im Baubeginn, somit können Sie sich für Ihr neues Geschäftslokal oder Ihre Praxisräumlichkeiten im Erdgeschoss auch mit einbringen und bei Entscheidungen über die Ausführung mitbestimmen.Die neuen Geschäftslokale liegen optimal in Innsbruck. Nur eine Straße neben der Triumphpforte in Wilten sind sie für jeden schnell und einfach zu erreichen. Auch zahlreiche Laufkundschaft wird in dieser Gegend spontan auf Ihr Geschäft aufmerksam, denn in der Nähe finden sich, so zentral gelegen, natürlich zahlreiche Gastronomien, Cafés und Bäcker sowie die Maria-Theresien Haupteinkaufsstraße!
Weitere Merkmale
- Heizung: Fernwärme
- Kabel/Satelliten-TV
- Lift
Kontaktinformationen
Name:
Andreas Kössler
Adresse:
Leopoldstraße 2
6020 Innsbruck
6020 Innsbruck
Internet:
Telefon:
Dieses Objekt finanzieren