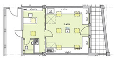
Kompakte Bürofläche im 3. Obergeschoß

Tirol , Innsbruck - Stadt , Innsbruck , Eduard-Bodem-Gasse 8
← Zur Ergebnisliste
images icon

2

Zimmer

54 m²

Nutzfläche

Gesamtmiete

€ 958,81
netto warm (inkl. 1 Parkplatz im Freien)
Miete pro m2 € 15,23
Netto-Kaltmiete € 823,58
netto kalt (inkl. 1 Parkplatz im Freien)
Kaltmiete € 988,3
brutto kalt (inkl. 1 Parkplatz im Freien)
Nebenkosten € 135,23
Heiz - und Betriebskosten
Einmalkosten € 1.044,54
Finanzamt: EUR 694,54
Vertragserrichtung: EUR 350,-
Preis Stellplatz € 57
für einen Parkplatz im Freien, auch Parkhaus oder in der TG möglich
USt € 191,76
Kaution € 3.451,71
drei Bruttomonatsmieten
Stockwerk 3. OG
Badezimmer 1
Terrasse 12,12 m²
Freiplatz 1
HWB (kwh/m²a) 84
HWB-Klasse C
FGEE 1,14
FGEE-Klasse C
Baujahr 1993
Bautyp
  • Saniert/Renoviert
Bauweise
  • Massiv
Verfügbar ab Jänner
Energieausweis
Anzeigen ID 358741
Aktualisiert am 11.12.2025
Dokumente
IVG Karl Gstrein GmbH
Name:
Andreas Gstrein
Adresse:

Internet:
Telefon:

Weitere Merkmale
  • Teeküche
  • Boden: Kunststoffboden
  • Heizung: Gas
  • Lift
  • Barrierefrei
  • Seniorengerecht
  • Rollstuhlgerecht
  • Klimatisiert
  • Ausrichtung Balkon/Terrasse: Osten
Kontaktinformationen
IVG Karl Gstrein GmbH
Name:
Andreas Gstrein
Adresse:

Internet:
Telefon:

Dieses Objekt finanzieren