Repräsentative Villenetage in Bestlage von Innsbruck – Büro, Wohnen oder kombinierte Nutzung

Tirol , Innsbruck - Stadt , Innsbruck , Bienerstraße 4
← Zur Ergebnisliste
images icon

7

Zimmer

186 m²

Nutzfläche

Gesamtmiete

€ 3.450
Netto, inkl. BK, exkl. Gas, Strom und Doppelcarport (optional)
Miete pro m2 € 17,77
Netto-Kaltmiete € 3.300
Nebenkosten € 150
Netto, exkl. Strom und Gas
Einmalkosten
Vergebührung des Vertrages, laut Gebührengesetz
Preis Stellplatz € 160
Netto für Doppelcarport, optional
USt € 660
Kaution € 12.000
Stockwerk 1. OG
Terrasse 21,75 m²
Abstellraum Ja
Gesamtanzahl Stellplätze 2
Carport 2
HWB (kwh/m²a) 89
HWB-Klasse C
Baujahr 1896
Bautyp
  • Gebraucht/Gepflegt
Verfügbar ab ab sofort
Anzeigen ID 356784
Aktualisiert am 27.11.2025
Externe ID 371263_4570359
IMMOART
Name:
Markus Buresch
Adresse:
Meilstraße 24a
6170 Zirl
Internet:
Telefon:

Im ersten Obergeschoss einer prachtvollen Saggenvilla gelangt diese außergewöhnliche Immobilie mit ca. 186 m² Nutzfläche zur Vermietung. Die Einheit verbindet stilvollen Altbaucharme mit moderner Funktionalität und eröffnet vielfältige Nutzungsmöglichkeiten – ob als reines Büro, als Wohnung oder in einer attraktiven Kombination aus Arbeiten und Wohnen, die auch steuerliche Vorteile mit sich bringen kann.

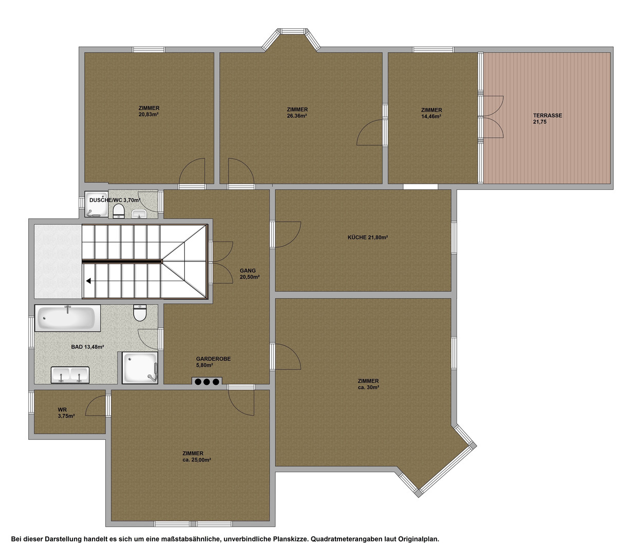
Die Fläche gliedert sich in einen Vorraum, zwei Badezimmer, zwei WC´s, einen Abstellraum, einen großzügigen Aufenthaltsraum mit neuer, hochwertiger Küche, sowie fünf helle Zimmer mit Flächen zwischen ca. 14,45 m² und 30 m². Alle Räume überzeugen durch ihre überdurchschnittliche Raumhöhe, den klassischen Altbaucharakter und eine moderne CAT-Verkabelung. Für den Bürobetrieb bietet die Einheit Platz für 12 bis 16 Arbeitsplätze.

Ein besonderes Highlight ist die sonnige Terrasse mit ca. 21,75 m², die einen wunderbaren Blick ins Grüne sowie in die umliegende Bergwelt eröffnet. Zusätzlich steht eine ca. 10 m² große Lagerfläche zur Verfügung. Optional können zwei überdachte Autoabstellplätze zu je netto € 160,00 angemietet werden; weitere Parkmöglichkeiten für Kunden befinden sich in unmittelbarer Nähe.

Das Gebäude selbst wurde 1896 errichtet und im Jahr 2001 umfassend saniert sowie für die Nutzung als Büro oder Kanzlei optimiert. Die Beheizung und Warmwasseraufbereitung erfolgt mittels Gas-Etagenheizung.

Diese Immobilie eignet sich perfekt für Unternehmen, Kanzleien oder Selbstständige, die Wert auf eine repräsentative Adresse in bester Innsbrucker Stadtlage legen – ebenso wie für all jene, die Wohnen und Arbeiten komfortabel unter einem Dach verbinden möchten.

LAGEBESCHREIBUNG:

Die Immobilie befindet sich in einer der begehrtesten und repräsentativsten Wohn- und Büroadressen Innsbrucks – im historischen Villenviertel Saggen. Geprägt von prachtvollen Altbauvillen, großzügigen Alleen und viel Grün, strahlt das Umfeld eine ruhige und zugleich elegante Atmosphäre aus, die sich ideal für anspruchsvolle Unternehmen, Kanzleien oder Praxen eignet.

Gleichzeitig überzeugt die Lage durch ihre unmittelbare Nähe zum Stadtzentrum: In wenigen Gehminuten erreichen Sie die Innsbrucker Altstadt, den Hauptbahnhof sowie zahlreiche Geschäfte, Restaurants, Cafés und kulturelle Einrichtungen. Auch Banken, Behörden und öffentliche Verkehrsmittel befinden sich in fußläufiger Reichweite.

Dank dieser einzigartigen Kombination aus repräsentativem Villenflair und bester Infrastruktur zählt die Saggenlage zu den Top-Adressen Innsbrucks – ein Standort, der sowohl Mitarbeiter als auch Kunden nachhaltig beeindruckt.

AUFSCHLÜSSELUNG MIETPREIS:

Miete Büro netto: € 3.300,00
Miete 2 Carports netto: € 160,00 (optional)
Betriebskosten netto: € 150,00 (exklusive Gas und Strom)
Die Miete wird mittels SEPA-Lastschriftmandat eingehoben
Kaution: € 12.000,00
Vertragserrichtung kostenlos:
Vermittlungshonorar: 3x Bruttomonatsmietzins zzgl. 20% Ust.

Weitere Merkmale
  • Bad mit Badewanne, Dusche, Fenster
  • Gäste-WC
  • Boden: Fliesen, Parkett
Kontaktinformationen
IMMOART
Name:
Markus Buresch
Adresse:
Meilstraße 24a
6170 Zirl
Internet:
Telefon:

Dieses Objekt finanzieren