172 m²
Nutzfläche
Gesamtmiete
Preis auf Anfrage
Anzeigen ID
356005
Aktualisiert am
23.12.2025
Externe ID
363797_Adamgasse
Moderne Bürofläche im Adambräu-Areal zu vermieten
Im ehemaligen Adambräu-Areal steht ein modernes Büro im 1. Obergeschoss zur Vermietung. Die Fläche überzeugt durch eine klare Raumstruktur, hochwertige Ausstattung und eine ausgezeichnete Lage nahe dem Innsbrucker Hauptbahnhof (5 Gehminuten).
Das Büro überzeugt neben der architektonisch ansprechenden Aufteilung und den großflächigen Fensterflächen vor allem durch den repräsentativen Zugang.
Technisch ergänzt wird die Ausstattung von einem Doppelbodensystem zur zentralen Verkabelung der Arbeitsplätze, sowie der Anschlussmöglichkeit an Hochgeschwindigkeitsinternet.
Die Klimatisierung und die Teeküche sorgen für das Wohlbefinden der Mitarbeiter.
Die WC-Anlagen befinden sich außerhalb der Einheit und sind direkt mit dem Lift erreichbar.
Das Objekt eignet sich ideal für Unternehmen, die zentral arbeiten möchten und Wert auf eine flexible Raumaufteilung legen.
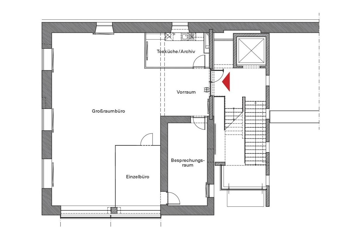
Flächenaufstellung:
- Gesamtfläche: 171,7 m²
- Großraumbüro
- Einzelbüro
- Besprechungsraum
- Vorraum / Empfang
- Teeküche & Archiv
Miete:
Mietzins: € 3.000 zzgl. USt.
Betriebskosten: € 674,03
Gesamtmiete: € 3.674,03
Es wird darauf hingewiesen, dass die abgebildete Büroeinrichtung, sowie die Lampen und Akustikpaneele ebenfalls mitgemietet werden können.
Im ehemaligen Adambräu-Areal steht ein modernes Büro im 1. Obergeschoss zur Vermietung. Die Fläche überzeugt durch eine klare Raumstruktur, hochwertige Ausstattung und eine ausgezeichnete Lage nahe dem Innsbrucker Hauptbahnhof (5 Gehminuten).
Das Büro überzeugt neben der architektonisch ansprechenden Aufteilung und den großflächigen Fensterflächen vor allem durch den repräsentativen Zugang.
Technisch ergänzt wird die Ausstattung von einem Doppelbodensystem zur zentralen Verkabelung der Arbeitsplätze, sowie der Anschlussmöglichkeit an Hochgeschwindigkeitsinternet.
Die Klimatisierung und die Teeküche sorgen für das Wohlbefinden der Mitarbeiter.
Die WC-Anlagen befinden sich außerhalb der Einheit und sind direkt mit dem Lift erreichbar.
Das Objekt eignet sich ideal für Unternehmen, die zentral arbeiten möchten und Wert auf eine flexible Raumaufteilung legen.
Flächenaufstellung:
- Gesamtfläche: 171,7 m²
- Großraumbüro
- Einzelbüro
- Besprechungsraum
- Vorraum / Empfang
- Teeküche & Archiv
Miete:
Mietzins: € 3.000 zzgl. USt.
Betriebskosten: € 674,03
Gesamtmiete: € 3.674,03
Es wird darauf hingewiesen, dass die abgebildete Büroeinrichtung, sowie die Lampen und Akustikpaneele ebenfalls mitgemietet werden können.
Lage:
Die Lage im ruhigen grünen Innenhof des ehemaligen Brauereiareals unterstreicht den hochwertigen Anspruch der zukünftigen Mieter.
Kontaktinformationen
Name:
David Imarhiagbe
Telefon:
Dieses Objekt finanzieren